POSZUKIWANY D68 to nowoczesny i komfortowy dom z poddaszem użytkowym. Dedykowany dla 4-5 osobowej rodziny ceniącej sobie wygodę oraz wysokie walory estetyczne i użytkowe.
Na parterze zaprojektowano wygodny wiatrołap z przejściem do garażu oraz do kuchni przez spiżarnię. Cześć dzienna obejmuje wyodrębniony salon, jadalnię i kuchnię. W kuchni zaprojektowano narożne okno z widokiem na wejście do domu i wyspę kuchenną. Kuchnia jest częściowo otwarta na jadalnię i salon. Dobrze doświetlona jadalnia z miejscem na duży stół posiada wyjście na zadaszony taras. Salon z dużymi przeszkleniami i widokiem na ogród ma przewidziane miejsce na wygodną kanapę oraz ścianę telewizyjną, która zasłania schody prowadzące na piętro. Dodatkowo na parterze zaprojektowano pokój/gabinet z ewentualnym wejściem z zewnątrz oraz tuż obok niego łazienkę. Część techniczna obejmuje dwustanowiskowy garaż oraz pomieszczenie techniczne z wyjściem na zewnątrz.
Na piętrze zaprojektowano cztery wygodne pokoje, z czego pokój gospodarzy z wydzieloną garderobą, łazienką oraz wyjściem na taras. Pozostałe pokoje mają oddzielną wygodną łazienkę, wyposażoną w wannę i prysznic. Dodatkowo na piętrze zlokalizowano pralnię oraz w części korytarza bibliotekę.
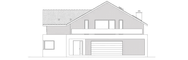
Elewacja budynku stanowi połączenie bieli, szarości i okładziny kamiennej w strefie parteru. Wielospadowy dach połączony został z charakterystyczną ramą oplatającą dom.
Autor projektu: mgr inż. arch. Ewelina Grochowska
Technologie
Fundamenty ławy fundamentowe żelbetowe monolityczne
Ściany fundamentowe bloczki betonowe
Ściany konstrukcyjne pustaki gazobetonowe o grubości 24 cm
Ściany działowe pustaki gazobetonowe o grubości 12 cm
Stropy żelbetowe monolityczne
Dach więźba dachowa + blachodachówka
Ewelina Grochowska














