Dom ODPOWIEDNI D66 został optymalnie zaprojektowany dla 4-5 osobowej rodziny, a jego układ funkcjonalny został podzielony na 3 strefy.
Strefa dzienna obejmuje wygodny salon z jadalnią z wyjściem na zadaszony taras, na którym jest miejsce na stół lub leżaki. W salonie zaprojektowano kominek oraz ścianę telewizyjną. Częściowo otwarta na salon kuchnia posiada wyspę i dużą powierzchnię zabudowy meblami kuchennymi oraz spiżarnię. Dla tej części przeznaczona jest łazienka znajdująca się w korytarzu, kierującym do strefy nocnej. Aby ułatwić przechowywanie rzeczy, w strefie dziennej zaprojektowano garderobą z wejściem z salonu, a w wiatrołapie – szafy. W wiatrołapie znajduje się też bezpośrednie przejście do garażu.
Cześć nocna to 4 wygodne sypialnie, do których przynależy spora łazienka z prysznicem i wanną. Łazienka połączona została z pralnią, która posiada wyjście na zewnątrz. Sypialnia gospodarzy posiada dwie garderoby oraz wyjście na zewnątrz.
Strefa techniczna to wygodny, doświetlony dwustanowiskowy garaż oraz pomieszczenie techniczne z ewentualnym wyjściem na zewnątrz.
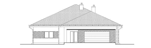
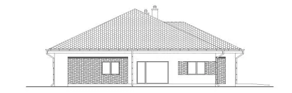
ODPOWIEDNI D66 cechuje zwarta bryła, oparta na planie kwadratu. Elewacja to klasyczna elegancja łącząca biel i brązową okładzinę kamienną w połączeniu z dachem w kolorze brązowym.
Autor projektu: mgr inż. arch. Ewelina Grochowska
Technologie
Fundamentyławy fundamentowe żelbetowe monolityczneŚciany fundamentowebloczki betonoweŚciany konstrukcyjnepustaki gazobetonowe o grubości 24 cmŚciany działowepustaki gazobetonowe o grubości 12 cmStropyżelbetowe monolityczneDachwielospadowy pokryty blachodachówką
Ewelina Grochowska














