PRECYZYJNY D59 to niezwykle nowoczesna bryła, w której zaprojektowano komfortową przestrzeń do życia jej mieszkańców.
Sercem domu jest obszerny salon i jadalnia z dużym narożnym przeszkleniem łączącym tę przestrzeń z ogrodem. W salonie zaprojektowano miejsce na wygodną kanapę, kominek oraz duży stół. W tej części domu znajdują się schody prowadzące na piętro, które mogą być wykonane jako żelbetowe lub jako konstrukcja stalowa. Częściowo otwarta na salon kuchnia znajduje się od frontu z widokiem na wejście i wjazd do domu. Od strony ogrodu zaprojektowano wygodny, z dużym przeszkleniem gabinet, który może pełnić funkcję dodatkowej sypialni lub pokoju dla seniora. Obok gabinetu jest łazienka z prysznicem i oknem doświetlającym wnętrze.
Część techniczna domu to obszerny dwustanowiskowy garaż oraz pomieszczenie techniczne/kotłownia z dodatkowym wejściem z zewnątrz.
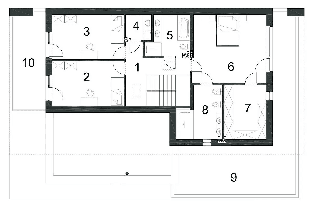
Na piętrze zaprojektowano 3 wygodne sypialnie. Sypialnia gospodarzy stanowi odrębna strefę z duża garderobą i wygodną łazienką oraz wyjściem na duży taras. Pozostałe dwa pokoje posiadają wspólną łazienkę oraz wyjście na balkon. Na piętrze znalazło się także miejsce na pralnię, a korytarz został wyposażony w dwa okna-świetliki, które dodatkowo doświetlają tę strefę.
Elewacja budynku to umiejętne połączenie bieli i szarości z charakterystycznymi ramami i występami, nadającymi budynkowi niebanalnej nowoczesności i jednocześnie elegancji.
Autor projektu: mgr inż. arch. Ewelina Grochowska
Technologie
Fundamenty ławy fundamentowe żelbetowe monolityczne
Ściany fundamentowe bloczki betonowe
Ściany konstrukcyjne pustaki gazobetonowe o grubości 24 cm
Ściany działowe pustaki gazobetonowe o grubości 12 cm
Stropy żelbetowe monolityczne
Dach stropodach
Ewelina Grochowska















