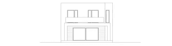
PORYWAJĄCY D67 to nowoczesny piętrowy dom z płaskim dachem dedykowany na wąską działkę. Dom charakteryzuje się wysokimi walorami użytkowymi oraz wizualnymi i będzie idealny dla rodziny 2+2.
Na parterze zaprojektowano strefę dzienną z salonem, który posiada duże przeszklenia z widokiem na ogród oraz wyjście na zadaszony taras, na którym można ustawić stół lub leżaki. Przestrzeń salonu zaaranżowano w taki sposób, aby zmieściła się wygodna kanapa i duży stół. W strefie dziennej ulokowano również częściowo otwartą na salon kuchnię z wyspą oraz spiżarnią. Obok kuchni, naprzeciwko schodów, znajduje się łazienka z prysznicem. Schody zaprojektowano tak, aby można było wygodnie przedostać się na piętro tuż po wejściu do domu, a zrealizowane jako monolityczne żelbetowe lub stalowe nadadzą wnętrzu nowoczesności.
Wygodny, dwustanowiskowy i doświetlony garaż oraz pomieszczenie techniczne/kotłownię zaprojektowano od strony frontowej domu.
Na piętrze są 3 wygodne pokoje, z czego pokój gospodarzy z własną garderobą. Dwa pokoje posiadają wyjście na balkony. Dla wygody domowników zaprojektowano obszerną łazienkę z prysznicem i wanną. Wydzielono również pomieszczenie pralni z dostępem od strony korytarza.
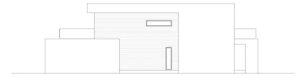
Zwarta bryła budynku zapewnia optymalne warunki cieplne budynku oraz oszczędności na etapie budowy i późniejszej eksploatacji. Elewacja to połączenie świeżości bieli, drewna oraz szklanych balustrad.
Autor projektu: mgr inż. arch. Ewelina Grochowska
Technologie
Fundamenty ławy fundamentowe żelbetowe monolityczne
Ściany fundamentowe bloczki betonowe
Ściany konstrukcyjne pustaki gazobetonowe o grubości 24 cm
Ściany działowe pustaki gazobetonowe o grubości 12 cm
Stropy żelbetowe monolityczne
Dach stropodach
Ewelina Grochowska














