Projekt SZYKOWNY D43 to propozycja nowoczesnego piętrowego domu dla rodziny ceniącej sobie komfort oraz przytulne wnętrze.
Głównymi przesłankami tego projektu, było osiągnięcie niewielkiego gabarytowo, ale w pełni funkcjonalnego i taniego w utrzymaniu domu.
Na parterze mieści się salon i jadalnia z wyjściem na taras, kuchnia, łazienka z prysznicem, pokój z wyjściem na zewnątrz, który może pełnić funkcję gabinetu, oraz wiatrołap, w którym zmieściły się dwie szafy oraz wygodne siedzisko do zmiany obuwia. Z wiatrołapu jest przejście do garażu i pomieszczenia technicznego/kotłowni. Centralnie usytuowany korytarz stanowi serce komunikacji domu, m.in. poprzez wydzieloną klatkę schodową prowadzącą na górę.
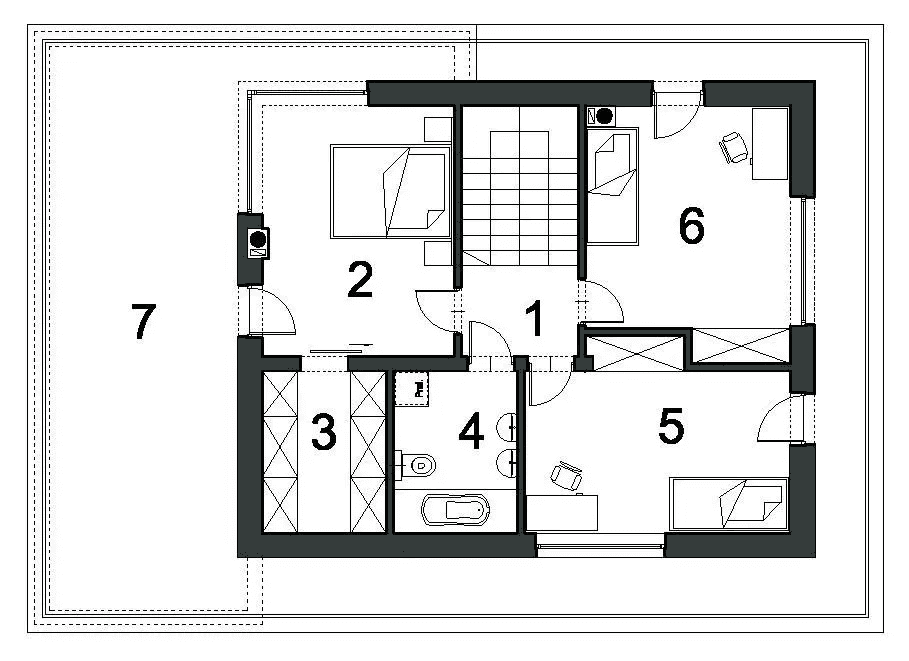
Na piętrze zaprojektowano strefę nocną w postaci 3 sypialni z wyjściem na taras oraz łazienka. Dodatkowo sypialnia gospodarzy jest połączona z garderobą.
Elewacja budynku to połączenie bieli i szarości z drewnem, a całość tworzy zwartą, nowoczesną bryłę.
Autor projektu: mgr inż. arch. Ewelina Grochowska
Technologie
Fundamenty ławy fundamentowe żelbetowe monolityczne
Ściany fundamentowe bloczki betonowe
Ściany konstrukcyjne pustaki gazobetonowe o grubości 24 cm
Ściany działowe pustaki gazobetonowe o grubości 12 cm
Stropy żelbetowe monolityczne
Dach stropodach
Ewelina Grochowska














