Projekt domu z poddaszem użytkowym TWÓRCZY D79 przeznaczony jest dla 4. osobowej rodziny. Łączy w sobie komfort użytkowania oraz wysokie walory wizualne.
Na parterze znajduje się strefa dzienna – widny salon i jadalnia z widokiem na ogród oraz wyjściem na zadaszony taras. Wygodna kuchnia z dużym narożnym oknem została zaprojektowana od frontu domu. Obok salonu znajduje się pokój z wyjściem na taras, który może pełnić funkcje gabinetu. A obok gabinetu jest łazienka dedykowana tej strefie. Za ścianą telewizyjną salonu znajdują się schody prowadzące na piętro.
Na piętrze zaprojektowano 3 sypialnie. Sypialnia gospodarzy posiada własną garderobę, łazienkę oraz wyjście na taras. Pozostałe dwa pokoje mają wspólną łazienka z miejscem na wannę oraz prysznic. Dodatkowo na piętrze przewidziano pralnię.
Strefa techniczna to dwustanowiskowy garaż oraz przechodnie pomieszczenie techniczne, do którego można wejść z wiatrołapu.
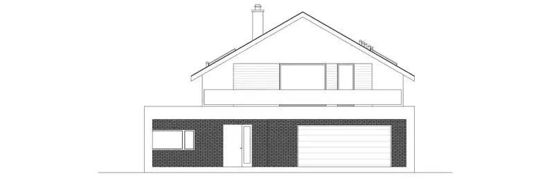
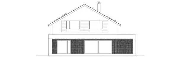
Bryła budynku to umiejętne połączenie dwuspadowego dachu, z powierzchniami płaskimi tworzącymi charakterystyczną ramę. Elewacja budynku została wykończona białym tynkiem, płytkami klinkierowymi na parterze oraz wstawkami z drewna na piętrze.
Autor projektu: mgr inż. arch. Ewelina Grochowska
Technologie
Fundamenty ławy fundamentowe żelbetowe monolityczne
Ściany fundamentowe bloczki betonowe
Ściany konstrukcyjne pustaki gazobetonowe o grubości 24 cm
Ściany działowe pustaki gazobetonowe o grubości 12 cm
Stropy żelbetowe monolityczne
Dach blachodachówka + stropodach
Ewelina Grochowska














