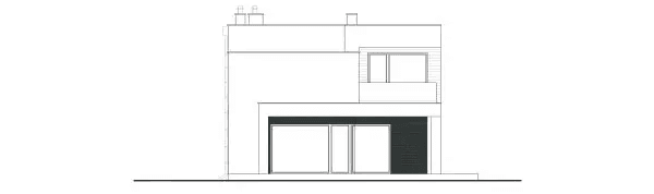
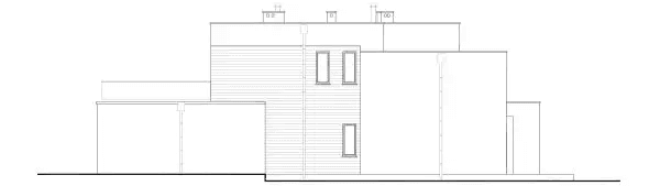
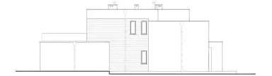
Projekt domu GUSTOWNY D39 WARIANT I to nowoczesny piętrowy dom z płaskim dachem o wysokich walorach użytkowych.
Wejście do budynku znajduje się pod częściowym zadaszeniem z prześwitem, który może być wypełniony szkłem. Za drzwiami wejściowymi znajduje się wiatrołap z miejscem na dwie pakowne szafy. Stąd można przedostać się do strefy technicznej albo dziennej, której sercem jest wysoki i przestronny salon, z dużymi przeszkleniami, które optycznie łączą go z ogrodem. W salonie zaprojektowano miejsce na wygodną dużą sofę, rozkładany stół oraz narożny kominek. Otwarta na salon kuchnia posiada wygodną wyspę oraz miejsca siedzące. W korytarzu znajduje się wejście na piętro, obok którego jest łazienka z oknem, a naprzeciw – gabinet/pokój. Niewątpliwym atutem Gustownego jest zadaszony taras z miejscem na stół i leżaki.
Na piętrze znajdują się 3 wygodne pokoje/sypialnie oraz łazienka z miejscem na wannę i dwie umywalki. Sypialnia gospodarzy ma prywatną sporą garderoba. Każdy pokój posiada wyjście na jeden z zewnętrznych tarasów, które można dodatkowo zaaranżować jako przestrzeń do wypoczynku. Dodatkowo większy taras posiada częściowe zadaszenie. Z korytarza rozpościera się widok na wysoki salon.
Budynek charakteryzuje się zwartą bryłą i dużymi przeszkleniami. Elewacja budynku to połączenie białego tynku, okładziny z desek oraz ciemnego klinkieru.
Autor projektu: mgr inż. arch. Ewelina Grochowska
Technologie
Fundamenty ławy fundamentowe żelbetowe monolityczne
Ściany fundamentowe bloczki betonowe
Ściany konstrukcyjne pustaki gazobetonowe o grubości 24 cm
Ściany działowe pustaki gazobetonowe o grubości 12 cm
Stropy żelbetowe monolityczne
Dach stropodach
Ewelina Grochowska

















