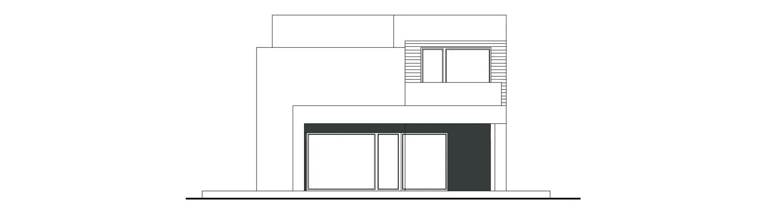
Projekt domu GUSTOWNY D39 to nowoczesny piętrowy „kompakt” z płaskim dachem.
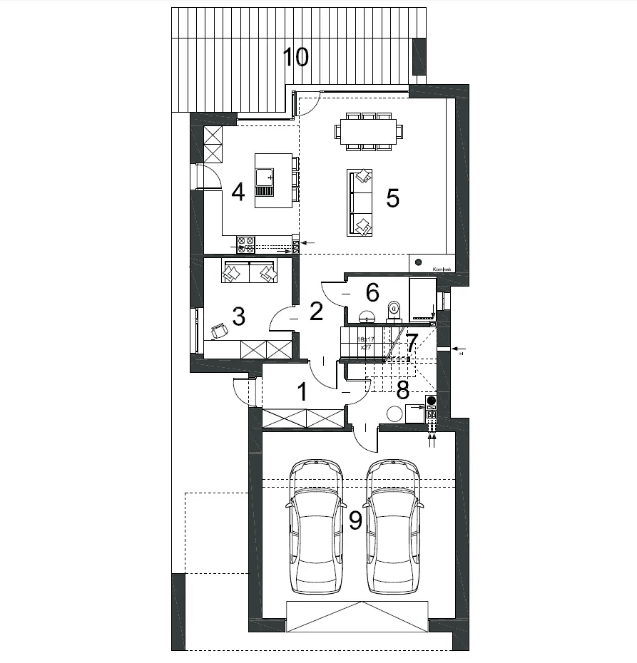
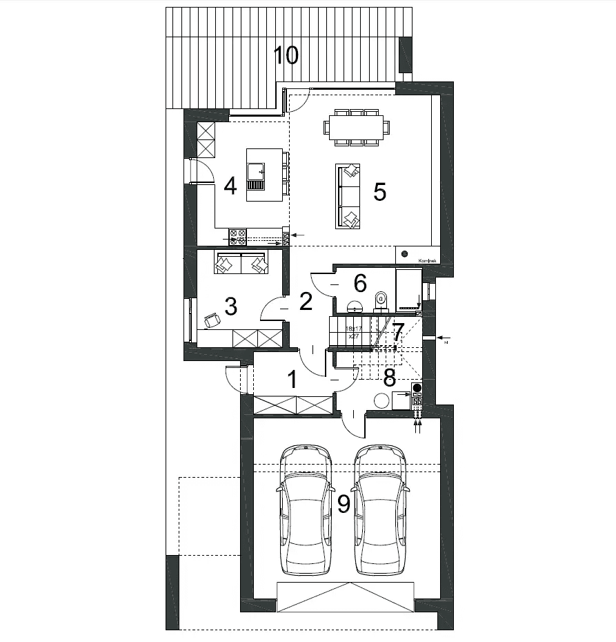
Na parterze w strefie dziennej znajdują się otwarta na wysoki salon kuchnia z wyspą, gabinet oraz łazienka. Bezpośrednie wyjście na duży taras od strony ogrodu jest z salonu, a z kuchni jest boczne wyjście do ogrodu. Tym razem schody umieszczono w wydzielonej klatce schodowej, zlokalizowanej tuż przy wiatrołapie, za którymi znajduje się łazienka. Strefa techniczna to przechodnie pomieszczenie techniczne oraz dwustanowiskowy garaż.
Na piętrze znajdują się 3 pokoje/sypialnie oraz łazienka z miejscem na wannę i dwie umywalki. Sypialnia gospodarzy ma prywatną garderobę. Każdy pokój posiada wyjście na jeden z zewnętrznych tarasów.
Budynek charakteryzuje się zwartą bryłą i dużymi przeszkleniami. Elewacja budynku to połączenie białego tynku, okładziny z desek oraz ciemnego klinkieru.
Autor projektu: mgr inż. arch. Ewelina Grochowska
Technologie
Fundamenty ławy fundamentowe żelbetowe monolityczne
Ściany fundamentowe bloczki betonowe
Ściany konstrukcyjne pustaki gazobetonowe o grubości 24 cm
Ściany działowe pustaki gazobetonowe o grubości 12 cm
Stropy żelbetowe monolityczne
Dach stropodach
Ewelina Grochowska






















