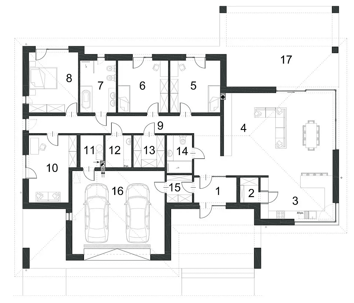
EG-80 to propozycja nowoczesnego domu parterowego o dużej powierzchni zabudowy, który spełni oczekiwania 4-5 osobowej rodziny szukającej przestrzeni, komfortu oraz eleganckiej estetyki. Projekt charakteryzuje się niebanalną bryłą, atrakcyjną elewacją oraz funkcjonalnym układem wnętrz podzielonym na trzy wyraźnie zaznaczone strefy.
Przestronna strefa dzienna z wyjściem na taras
Serce domu stanowi otwarta strefa dzienna, która idealnie sprawdzi się podczas wspólnego spędzania czasu i spotkań z bliskimi:
- salon z miejscem na duży narożnik oraz kominek,
- jadalnia z widokiem na ogród i bezpośrednim wyjściem na taras,
- funkcjonalna kuchnia połączona ze spiżarnią,
- dodatkowa łazienka z prysznicem – idealna dla gości.
Wysokie przeszklenia zapewniają doskonałe doświetlenie wnętrz, a bezpośrednie połączenie z ogrodem przez taras zachęca do wypoczynku na świeżym powietrzu.
Strefa prywatna z czterema sypialniami
Część nocna projektu EG-80 została zaprojektowana z myślą o komforcie domowników:
- cztery przestronne sypialnie,
- duża łazienka główna,
- pralnia oraz garderoba, które zwiększają funkcjonalność tej części domu.
Duży garaż i strefa techniczna
Z myślą o wygodzie mieszkańców przewidziano w projekcie:
- garaż dwustanowiskowy z przejściem przez garderobę do wiatrołapu – praktyczne rozwiązanie w codziennym użytkowaniu,
- pomieszczenie techniczne/kotłownia z rekuperacją i możliwością ogrzewania gazowego.
Estetyka i konstrukcja
Projekt EG-80 łączy w sobie styl tradycyjny z nowoczesnymi akcentami:
- elewacja w kolorach bieli i szarości z charakterystycznymi ramami wokół strefy wejściowej i tarasu,
- wielospadowy dach o nachyleniu 25°, pokryty dowolnym materiałem dachowym,
- solidna konstrukcja z bloczków silikatowych i żelbetowych stropów.
EG-80 to dom, który łączy nowoczesny wygląd z wygodą użytkowania na jednej kondygnacji. Przemyślany układ pomieszczeń, duży garaż, spójna estetyka oraz funkcjonalne rozwiązania sprawiają, że ten gotowy projekt domu jest doskonałą propozycją dla inwestorów poszukujących nowoczesnego parterowego domu dla swojej rodziny.
Ewelina Grochowska













