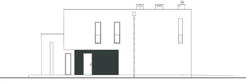
NOWATORSKI D57 wariant I to elegancka propozycja dla osób ceniących nowoczesną architekturę, przestrzeń i funkcjonalność. Projekt ten wyróżnia się płaskim dachem oraz minimalistyczną, geometryczną formą elewacji, którą wzbogacają naturalne akcenty z drewna. Dom o powierzchni zabudowy blisko 190 m² przeznaczony jest dla rodzin szukających komfortu oraz praktycznych rozwiązań rozplanowanych na dwóch kondygnacjach.
Przemyślana przestrzeń dzienna na parterze
Strefa dzienna została zaprojektowana jako otwarta i jasna przestrzeń z dużymi przeszkleniami, które otwierają wnętrze na ogród:
- salon z jadalnią i miejscem na wygodny narożnik, kominek i stół rodzinny,
- kuchnia z centralną wyspą kuchenną oraz widokiem na front domu, połączona ze spiżarnią,
- funkcjonalny wiatrołap z przejściem do kotłowni i garażu dwustanowiskowego,
- gabinet dostępny z salonu – idealne miejsce do pracy z domu,
- dodatkowe pomieszczenie techniczne z wejściem z garażu i ogrodu – świetne na narzędzia, rowery lub jako schowek ogrodowy,
- łazienka dostępna z głównych stref domu.
Komfortowe piętro dla domowników
Na piętrze zaplanowano wygodną przestrzeń nocną:
- sypialnia gospodarzy z własną garderobą i łazienką,
- dwa dodatkowe pokoje z dostępem do wspólnej łazienki,
- pralnia ulokowana przy strefie sypialnianej dla większej wygody,
- taras na piętrze dostępny z korytarza i położony nad salonem.
Styl, energooszczędność i technologie w NOWATORSKI D57 I
Projekt domu NOWATORSKI D57 I charakteryzuje się nowoczesnym, ale ciepłym wyglądem – elewacja to połączenie bieli i szarości z akcentami z drewna. Dobrze dobrane proporcje i płaski dach tworzą dynamiczną, ale spójną całość.
Technologie zastosowane w projekcie:
- ściany z pustaków gazobetonowych 24 cm (konstrukcyjne) i 12 cm (działowe),
- strop oraz płaski dach wykonane jako żelbetowe monolityczne,
- wentylacja grawitacyjna, ogrzewanie gazowe,
- dom zaprojektowany jako energooszczędny,
- funkcjonalny garaż na dwa samochody.
NOWATORSKI D57 wariant I to projekt dla tych, którzy poszukują kompromisu między nowoczesnym stylem a wygodą codziennego użytkowania. Przemyślany układ pomieszczeń, otwarte przestrzenie oraz płaski dach sprawiają, że dom ten wyróżnia się na tle innych propozycji i idealnie sprawdzi się na działce o szerokości od 23 m.
Ewelina Grochowska



















