NOWATORSKI D57 to nowoczesny, komfortowy piętrowy dom z płaskim dachem.
Sercem domu jest wysoki salon z miejscem na kanapę, stół i kominek oraz widokiem na ogród. Schody z salonu prowadzą na piętro, a pod nimi znajduje się przejście do gabinetu. Otwarta na salon wygodna kuchnia, z widokiem na wejście do domu, wyposażona została w spiżarnię oraz centralnie usytuowaną wyspę. Łazienka znajduje się tuż za wiatrołapem i ma wygodny dostęp zarówno z salonu jak i kuchni. Wiatrołap z jednej strony ma miejsce na szafy, a z drugiej przejście do garażu przez kotłownię. Zaprojektowano także dodatkowe pomieszczenie techniczne nr 10 z dostępem z garażu i ogrodu, którego funkcję można dopasować do własnych potrzeb.
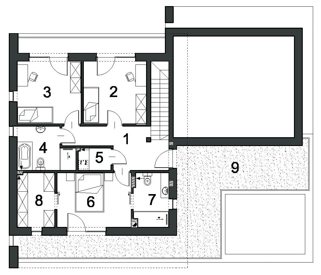
Na piętrze rozplanowano 3 wygodne pokoje, z czego pokój gospodarzy z własną garderobą i łazienką. Pozostałe dwa pokoje mają wspólną łazienkę, obok której zaprojektowano pralnię. Na piętrze nad salonem znajduje się spory taras, a w korytarzu jest wyjście na niego.
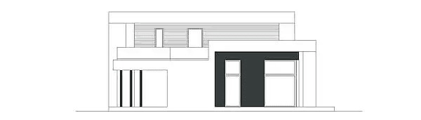
NOWATORSKI D57 to niebanalna bryła połączona ze świetnie rozplanowaną funkcjonalnością. Elewacja budynku to umiejętne połączenie bieli i szarości oraz „ocieplających” dom desek.
Autor projektu: mgr inż. arch. Ewelina Grochowska
Technologie
Fundamenty ławy fundamentowe żelbetowe monolityczne
Ściany fundamentowe bloczki betonowe
Ściany konstrukcyjne pustaki gazobetonowe o grubości 24 cm
Ściany działowe pustaki gazobetonowe o grubości 12 cm
Stropy żelbetowe monolityczne
Dach stropodach płaski żelbetowy monolityczny
Ewelina Grochowska














