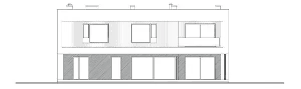
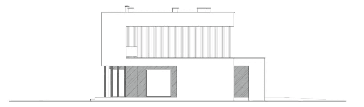
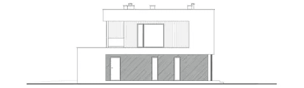
WYSZUKANY D64 WARIANT II to piętrowy dom z płaskim dachem o wyjątkowej, ponadczasowej stylistyce i wysokich walorach funkcjonalnych.
Do wnętrza domu prowadzi wygodny wiatrołap z miejscem na pufę i wydzieloną garderobą. Z wiatrołapu można przejść przez spiżarnię do kuchni oraz do dwustanowiskowego garażu i pomieszczenia technicznego, co bardzo ułatwia komunikację w tej strefie. Tuż za drzwiami wiatrołapu zaprojektowano schody oddzielone od salonu ścianą telewizyjną. Obszerny salon, dzięki dużym przeszkleniom, jest dobrze doświetlony i harmonizuje z ogrodem. W salonie znajduje się miejsce na tzw. „kozę” oraz wyjście na zewnętrzny zadaszony taras. W tej części domu zaprojektowano również jadalnię z dużym stołem oraz wyjściem na taras, która sąsiaduje z wygodną kuchnią wyposażoną w dużą wyspę i miejsca siedzące. Od strony ogrodu znajduje się pokój, który może pełnić funkcję gabinetu lub pokoju dla seniora.
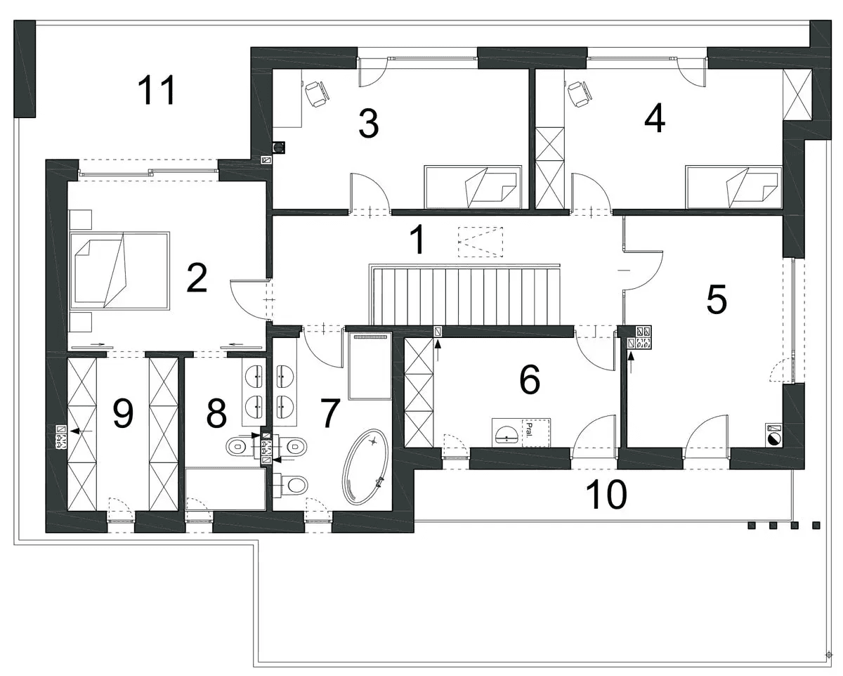
Na piętrze zaprojektowano cześć nocną w postaci 4 wygodnych sypialni. Sypialnia gospodarzy posiada własną łazienkę, garderobę oraz zadaszony taras. Dla pozostałych sypialni przewidziano wspólną obszerną łazienkę, obok której znalazło się miejsce na wygodną pralnię.
Bryła budynku stanowi dopracowaną w każdym szczególe spójną koncepcję. Elewacja budynku łączy w sobie świeżość bieli, tynk imitujący beton oraz deski w „ciepłym kolorze”.
Autor projektu: mgr inż. arch. Ewelina Grochowska
Technologie
Fundamenty ławy fundamentowe żelbetowe monolityczne
Ściany fundamentowe bloczki betonowe
Ściany konstrukcyjne pustaki gazobetonowe o grubości 24 cm
Ściany działowe pustaki gazobetonowe o grubości 12 cm
Stropy żelbetowe monolityczne
Dach stropodach
Ewelina Grochowska















