Projekt DOSTĘPNY D45 WARIANT IV to propozycja w pełni funkcjonalnego domu parterowego z możliwością adaptacji poddasza na cele użytkowe.
Dla wygody użytkowania na parterze zostały wydzielone 3 strefy, komunikacja pomiędzy którymi została dobrze zaprojektowana. Np. z wiatrołapu do części nocnej prowadzi korytarz oddzielony od salonu ścianą, na której znajduje się kominek i TV, do garażu można przejść przez przechodnią garderobę znajdującą się obok wiatrołapu, a za wiatrołapem znajduje się klatka schodowa zapewniająca dostęp na poddasze.
Strefę dzienną tworzą salon z jadalnią, gdzie spokojnie zmieści się wygodny narożnik i duży stół, oraz otwarta kuchnia połączona ze spiżarnią. Z salonu jest wyjście na zadaszony taras, natomiast kuchnia znajduje się od frontu z widokiem na wejście do domu. Przytulną atmosferę w tej strefie w chłodne jesienne dni zbuduje palący się kominek.
Część nocna to 4 sypialnie, z których 3 mają wyjście do ogród, pralnia oraz łazienka. Sypialnia gospodarzy ma boczny widok i wyjście do ogrodu oraz dodatkowo prywatną garderobę i łazienkę.
W strefie technicznej znajduj się widny garaż oraz kotłownia.
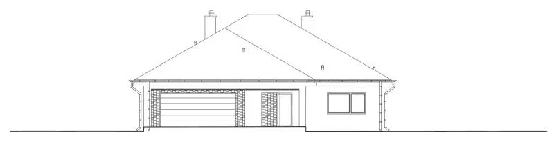
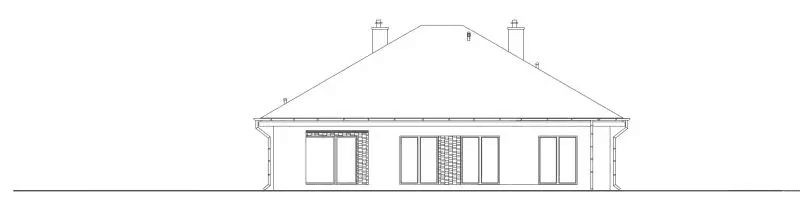
Bryła budynku jest zwarta i oparta na kształcie kwadratu. Elewacja budynku to połączenie bieli, szarości oraz okładziny z płytek/kamienia.
Autor projektu: mgr inż. arch. Ewelina Grochowska
Technologie
Fundamenty ławy fundamentowe żelbetowe monolityczne
Ściany fundamentowe bloczki betonowe
Ściany konstrukcyjne pustaki gazobetonowe o grubości 24 cm
Ściany działowe pustaki gazobetonowe o grubości 12 cm
Stropy żelbetowe monolityczne
Dach pokryty blachodachówką
Ewelina Grochowska















