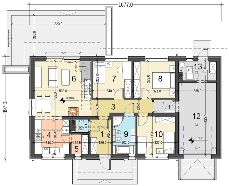
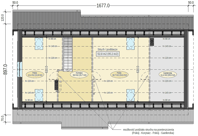
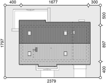
Terrier MAX z garażem, to niewielki, typowo parterowy dom, bez podpiwniczenia z możliwością adaptacji poddasza na cele mieszkalne. Zwarta bryła, oparta na rzucie prostokąta, została zaprojektowana z symetryczną fasadą frontową w części głównej oraz wejściem podkreślonym prostym zadaszeniem. Budynek jest przekryty dwuspadowym dachem o tradycyjnej konstrukcji drewnianej i kalenicy usytuowanej równolegle do elewacji frontowej. Funkcjonalne, doskonale doświetlone wnętrze podzielono w klasyczny sposób na strefę dzienną, nocną oraz gospodarczą. Na tę pierwszą składają się kuchnia wraz z podręczną spiżarnią oraz rozległy pokój dzienny z kominkiem oraz wyjściem na częściowo zadaszony taras. Przeciwległą stronę przeznaczono pod część prywatną złożoną z łazienki, oraz trzech zgrabnych pokoi sypialnych. Przejście do strefy gospodarczej stanowi przedsionek garażu łączący się z garażem jednostanowiskowym i korytarzem wewnętrznym domu. W pokoju dziennym zaprojektowano drewniane schody prowadzące na poziom strychu użytkowego. Strych użytkowy, w ramach adaptacji można przeznaczyć na cele mieszkalne, można podzielić na dwa duże pokoje, korytarz i garderobę. Zaprojektowano konstrukcję dachu o bardzo prostym układzie krokwiowo – jętkowym, bez podparcia pośredniego - co umożliwia swobodną aranżacje pomieszczeń poddasza. W budynku zaprojektowano również pomieszczenie kotłowni, standardowo z kotłem na paliwo stałe - „pellet”, w całym budynku zastosowano ogrzewanie podłogowe. Budynek stanowi kompromis tradycyjnej formy, współczesnej estetyki oraz regionalnych materiałów, takich jak okładzina z drewna elewacyjnego, szlachetna dachówka ceramiczna. Ponadczasowa architektura tego zgrabnego i przytulnego domu sprawia że, z łatwością wpisze się w niemal każdy krajobraz.
TECHNOLOGIA BUDOWY
Posadowienie bezpośrednie na zbrojonych ławach fundamentowych wykonanych z betonu B 20, lawy o szerokości 60 cm i wysokości 40 cm. Ściany fundamentowe: murowane z bloczków betonowych typu M6. Ściany zewnętrzne i wewnętrzne, nośne z bloczków gazobetonowych gr. 24 cm (lub pustaki z ceramiki poryzowanej gr. 25 cm), murowane na zaprawie systemowej, ciepłochronnej. Do ocieplenia budynku zaprojektowano użycie styropianu grafitowego gr. 15 cm, o współczynniku „lambda” wynoszącym 0,031 W(mK) i „oporze cieplnym” nie mniejszym niż Rd – 4,0 m2k/W. Wartości współczynników przenikania ciepła przez przegrody są już dostosowane do wymogów obowiązujących od stycznia 2021 r. również wymogów izolacyjnych ze standardu NF 40. Ściany wewnętrzne działowe zaprojektowano z bloczków gazobetonowych gr. 12 cm. Strop zaprojektowano jako gęstożebrowy typu „Terriva” z wypełnieniem pustakami betonowymi, zalewany wraz z wieńcami betonem B 20. Konstrukcja dachu, drewniana, drewno klasy C24, więźba dachu o bardzo prostym układzie krokwiowo – jętkowym, bez podparcia pośredniego - co umożliwia swobodną aranżacje pomieszczeń poddasza. Pokrycie dachu zaprojektowano z dachówki ceramicznej czy betonowej, alternatywnie pokrycie można wykonać z blachy ocynkowanej, powlekanej, mocowanej na rąbek stojący. Projekt pod względem konstrukcyjnym spełnia normy zgodne z Eurokodami. Zastosowanie materiałów budowlanych (do ocieplenia ścian, dachu, podłogi na gruncie, odpowiednich okien i drzwi), wymogów izolacyjnych ze standardu NF 40 użytych w projekcie gwarantuje uzyskanie wskaźnika rocznego obliczeniowego zapotrzebowania na energię pierwotną dla budynku „Ep” poniżej 70 kWh/(m2·rok) – wymagania od stycznia 2021 r. Do ogrzewania budynku zaprojektowano instalację wewnętrzną C.O. z ekologicznym kotłem na biomasę (granulat drzewny – pellet) lub zasilaną nowoczesną pompą ciepła typu „powietrze–woda”, w całym budynku zastosowano ogrzewanie podłogowe. W dokumentacji jest zawarty dodatkowo wariant z zasilaniem kondensacyjnym kotłem gazowym i instalacją gazu – wymaga jednak zastosowania w budynku instalacji solarnej do podgrzania ciepłej wody użytkowej (dla spełnienia wymagań WT2021). Są dostępne trzy podstawowe rodzaje ogrzewania z instalacjami – Inwestor wybiera odpowiedni rodzaj na etapie zamówienia projektu, ogrzewanie na „pellet”, ogrzewanie „pompą ciepła” lub ogrzewanie gazowe + instalacja solarna, (dwa ostatnie warianty ogrzewania są płatne dodatkowo - zapytaj o cenę). Projekt jest w pełni przystosowany do wymogów WT2021.
"Dobre projekty powstają w doświadczonych pracowniach. Projektujemy domy już od 15 lat"















