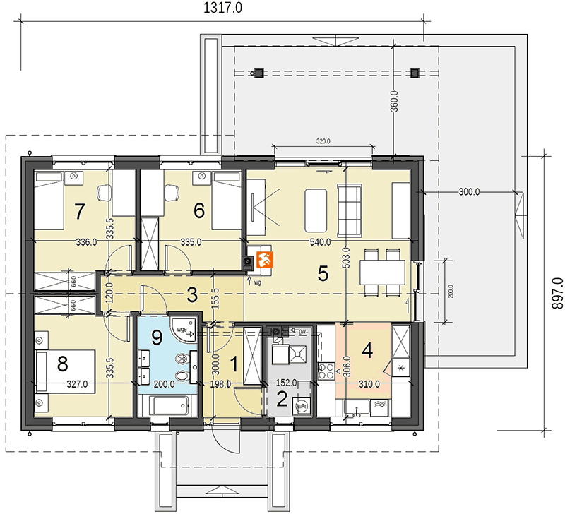
Terrier 2 bez garażu to niewielki, typowo parterowy dom, bez podpiwniczenia i poddasza użytkowego. Zwarta bryła, oparta na rzucie prostokąta, została zaprojektowana z symetryczną fasadą frontową oraz wejściem podkreślonym prostym zadaszeniem. Budynek jest przekryty dwuspadowym dachem o tradycyjnej konstrukcji drewnianej i kalenicy usytuowanej równolegle do elewacji frontowej. Funkcjonalne, doskonale doświetlone wnętrze podzielono w klasyczny sposób na strefę dzienną i nocną. Na tę pierwszą składają się kuchnia oraz rozległy pokój dzienny z kominkiem oraz wyjściem na zadaszony taras. Przeciwległą stronę przeznaczono pod część prywatną złożoną z łazienki, oraz trzech zgrabnych pokoi sypialnych. Budynek stanowi kompromis tradycyjnej formy, współczesnej estetyki oraz regionalnych materiałów, takich jak cegła klinkierowa, elewacyjna okładzina z piaskowca, naturalne drewno. Ponadczasowa architektura tego małego domu sprawia, że z łatwością wpisze się w niemal każdy krajobraz.
TECHNOLOGIA BUDOWY
Posadowienie bezpośrednie na zbrojonych ławach i stopach fundamentowych wykonanych z betonu B 20. Ściany fundamentowe: murowane z bloczków betonowych M6. Ściany zewnętrzne, nośne: bloczki gazobetonowe gr. 25 cm na zaprawie systemowej, ciepłochronnej, ocieplony styropianem fasadowym gr. 15 cm. Do ocieplenia budynku zaprojektowano użycie styropianu grafitowego gr. 15 cm, o współczynniku „lambda” nie przekraczającym 0,035 W(mK) i „oporze cieplnym” nie mniejszym niż Rd – 4,0 m2k/W. Zastosowanie materiałów budowlanych (ocieplenie ścian, dachu, podłogi na gruncie, okien i drzwi zewnętrznych) użytych w projekcie odpowiada nowym wymaganiom obowiązującym od stycznia 2021 roku (WT2021). Ściany wewnętrzne działowe: bloczki gazobetonowe gr. 12 cm. Strop z płyt GK na ruszcie stalowym, podwieszonym do dolnych pasów drewnianych wiązarów dachowych. Konstrukcja dachu: drewniana, drewno klasy C24, więźba dachu głównego w formie wiązarów opartych na ścianach zewnętrznych, dach dwuspadowy z jednospadowym zadaszeniem tarasu. Pokrycie dachu zaprojektowano z blachy ocynkowanej, powlekanej, mocowanej na rąbek stojący, alternatywnie pokrycie można wykonać z dachówki ceramicznej czy betonowej. Budynek, w wersji podstawowej, jest zaprojektowany z pomieszczeniem kotłowni wyposażonej w kocioł ekologiczny na paliwo stałe, biomasę (granulat drzewny – pellet) i spełnia wszystkie wymagania dotyczące WT2021. Istnieje możliwość zamówienia dokumentacji projektowej w wersji ogrzewania gazowego ze wspomaganiem instalacją solarną lub ogrzewania nowoczesną pompa ciepła typu powietrze – woda i ogrzewaniem podłogowym. Standard energetyczny budynku, w każdej wersji ogrzewania jest w pełni spełniający wymagania WT2021. Projekt pod względem konstrukcyjnym spełnia normy zgodne z Eurokodami.
"Dobre projekty powstają w doświadczonych pracowniach. Projektujemy domy już od 15 lat"














