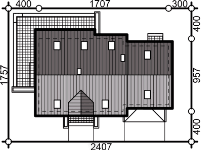
Dom Sowa 9 to ponadczasowy projekt z poddaszem i garażem dwustanowiskowym. Charakteryzuje go kompaktowa, zwarta bryła, która harmonijnie łączy się z dwuspadowym dachem o prostej konstrukcji drewnianej. Dom został zaprojektowany z elegancką lukarną i uroczym balkonem nad wejściem głównym. Dodatkowo, posiada dobudowany garaż dwustanowiskowy, zapewniający wygodne miejsce na dwa samochody.
Projekt ten został zaprojektowany dla potrzeb 4-ro lub 5-cio osobowej rodziny.
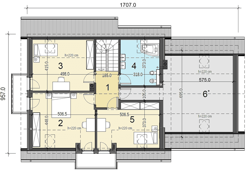
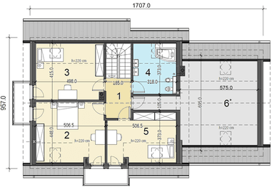
Projekt domu Sowa 9 garaż 2 g to popularny i lubiany proejkt domu jednorodzinnego z poddaszem, wysoką ścianką kolankową i wygodnym użytkowo wnętrzem.
Dodatkowym atutem tego budynku jest możliwość adaptacji strychu nad garażem na dodatkowy pokój mieszkalny. Optymalna wysokość ścianki kolankowej zapewnia komfortową przestrzeń mieszkalną na poddaszu, zachowując jednocześnie idealne proporcje bryły budynku.
"Dobre projekty powstają w doświadczonych pracowniach. Projektujemy domy już od 15 lat"















