Jaskółka 7 - funkcjonalny dom z poddaszem użytkowym dla 4-5-osobowej rodziny
Projekt domu Jaskółka 7 z garażem to doskonała propozycja dla rodzin, które szukają funkcjonalnego i nowoczesnego domu z poddaszem użytkowym. Dom jest zaprojektowany w taki sposób, aby zapewnić komfortowe warunki życia dla 4-5 osób.
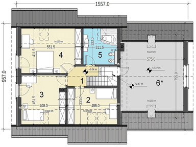
Projekt ergonomicznego domu
Kompaktowa bryła domu sprawia, że jest on łatwy w budowie i nie zajmuje dużo miejsca na działce. Dwuspadowy dach o prostym układzie krokwiowo-jętkowym jest ekonomiczny w budowie i zapewnia odpowiednią ilość światła dziennego w pomieszczeniach.
Funkcjonalność w domu
Wnętrze domu zostało zaprojektowane z myślą o funkcjonalności i komfortie. Strefa dzienna na parterze składa się z przestronnego salonu z jadalnią, kuchni z jadalnią i pokoju gościnnego. Salon z jadalnią otwiera się na ogród, dzięki czemu dom jest doskonale doświetlony naturalnym światłem. Na poddaszu znajduje się w pełni rozkładowa strefa nocna, składająca się z trzech sypialni i łazienki.
Projekt domu Jaskółka 7 z garażem to również doskonała propozycja dla osób, które chcą zaoszczędzić na budowie. Prosta bryła domu i ekonomiczny dach sprawiają, że jest on tańszy w budowie niż inne projekty domów z poddaszem użytkowym.
Zalety projektu:
- "Dom Jaskółka 7 to doskonała propozycja dla rodzin, które chcą mieć duży dom z poddaszem użytkowym, ale nie dysponują dużym budżetem. Dzięki zastosowaniu nowoczesnych technologii i materiałów, dom ten można wybudować w atrakcyjnej cenie."
- "Dom Jaskółka 7 to idealny wybór dla rodzin z dziećmi. Na poddaszu znajduje się aż cztery sypialnie, dzięki czemu każdy z domowników będzie miał swoje własne miejsce do wypoczynku."
- "Dom Jaskółka 7 to świetna propozycja dla osób, które lubią spędzać czas na świeżym powietrzu. Na parterze znajduje się przestronny taras, który jest idealnym miejscem na letnie posiłki i spotkania z rodziną i przyjaciółmi."
Opinie:
"Wnętrze domu jest bardzo dobrze przemyślane i funkcjonalne. Dzięki temu mamy wszystko, czego potrzebujemy, bez zbędnych pomieszczeń. Dom jest także łatwy w budowie, co pozwoliło nam zaoszczędzić sporo pieniędzy. Jesteśmy bardzo zadowoleni z naszego wyboru i polecamy ten projekt wszystkim, którzy szukają funkcjonalnego i taniego domu." - @Marysia
"Dobre projekty powstają w doświadczonych pracowniach. Projektujemy domy już od 15 lat"


















