Jaskółka 5 - doskonały projekt domu z poddaszem dla rodziny
Dom Jaskółka 5 to projekt, który od lat cieszy się niesłabnącą popularnością wśród inwestorów. Jest to doskonały wybór dla rodzin 4-5-osobowych, które szukają funkcjonalnego i estetycznego domu.
Jaskółka 5 - Projekt z poddaszem i garażem
Dom Jaskółka 5 posiada garaż jednostanowiskowy, który harmonijnie wpisuje się w bryłę budynku. Dzięki temu dom jest bardzo praktyczny i funkcjonalny.
Jaskółka 5 - Lubiany dom parterowy z poddaszem
Dom Jaskółka 5 to jeden z najpopularniejszych projektów domów z poddaszem. Projekt ten jest wybierany przez wielu inwestorów, ponieważ jest funkcjonalny, energooszczędny i stosunkowo niedrogi
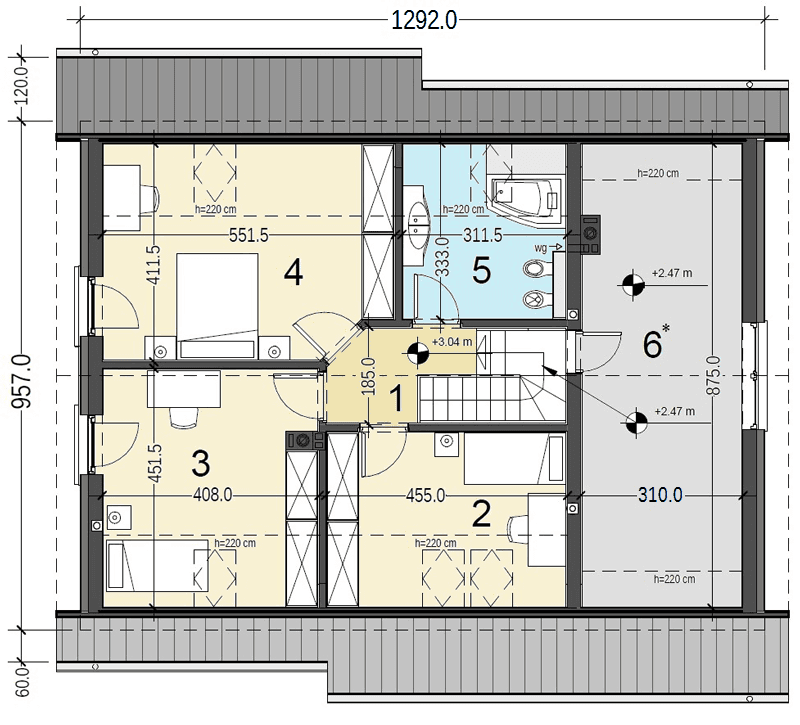
- Funkcjonalne wnętrza domu Jaskółka 5
Dom Jaskółka 5 jest bardzo funkcjonalny. Na parterze znajduje się salon z aneksem kuchennym, który jest połączony z jadalnią. To idealne miejsce do spotkań rodzinnych i towarzyskich. Na parterze znajduje się również garaż, pokój gościnny i łazienka. Na poddaszu znajdują się trzy sypialnie i łazienka.
- Wygoda użytkowania domu Jaskółka 5
Dom Jaskółka 5 jest bardzo wygodny w użytkowaniu. Na parterze znajdują się wszystkie najważniejsze pomieszczenia, takie jak salon, kuchnia, łazienka i garaż. Dzięki temu dom jest bardzo praktyczny i łatwy w utrzymaniu.
Projekt gotowy Jaskółka 5 to znany i lubiany projekt domu z poddaszem, zaprojektowany specjalnie dla 4-5 osobowej rodziny. Prosta, symetryczna bryła sprawia, że budynek wygląda nowocześnie i stylowo. Jasne elewacje z drewnianymi elementami nadają mu przytulny charakter.
Optymalna wysokość ścianki kolankowej (106 cm w części mieszkalnej i 163 cm w części strychu), pozwala na uzyskanie komfortowej powierzchni mieszkalnej na poddaszu i zachowanie idealnych proporcji bryły obiektu. Budynek stanowi kompromis tradycyjnej formy, współczesnej estetyki oraz nowoczesnych materiałów, takich jak elewacyjna okładzina klinkierowa, czy szlachetna dachówka ceramiczna. Ponadczasowa architektura tego małego domu sprawia, że z łatwością wpisze się w niemal każdy krajobraz.
- Tani w budowie
Dom Jaskółka 5 jest stosunkowo niewielki, co sprawia, że jego budowa jest tańsza niż w przypadku większych domów. Ponadto, dom został zaprojektowany z uwzględnieniem zasad energooszczędności, dzięki czemu koszty jego utrzymania są niskie.
Opinie na temat projektu domu Jaskółka 5:
- "Wspaniały dom dla rodziny. Przestronny, funkcjonalny i bardzo estetyczny. Idealnie wpasował się w nasz ogród. Jesteśmy bardzo zadowoleni z wyboru tego projektu." - Robert
- "Zdecydowanie polecam projekt domu Jaskółka 5. To idealny wybór dla rodziny 4-5-osobowej. Dom jest funkcjonalny, estetyczny i tani w budowie. Po prostu to fajny optymalny dom.
- Na parterze znajduje się wszystko, czego potrzebujemy do codziennego życia. Mamy tu przestronny salon z jadalnią, który jest idealnym miejscem do spotkań z rodziną i przyjaciółmi. Jest też garaż, pokój gościnny i łazienka. Dom doskonale wpasowuje się w każdy krajobraz. Jeśli szukacie funkcjonalnego i estetycznego domu dla rodziny, to zdecydowanie polecam projekt Jaskółka 5." - Patrycja
- "Budowa domu Jaskółka 5 była dla nas bardzo przyjemna. Dom jest bardzo dobrze zaprojektowany i łatwy w budowie. Ekipa budowlana, która budowała nasz dom, była bardzo doświadczona i profesjonalna. Dotrzymali terminu i wykonali pracę solidnie.
- Jesteśmy bardzo zadowoleni z naszego domu. Jest funkcjonalny, estetyczny i tani w utrzymaniu." - @rodzinkaBS
"Dobre projekty powstają w doświadczonych pracowniach. Projektujemy domy już od 15 lat"















