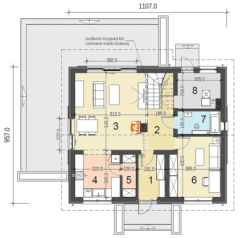
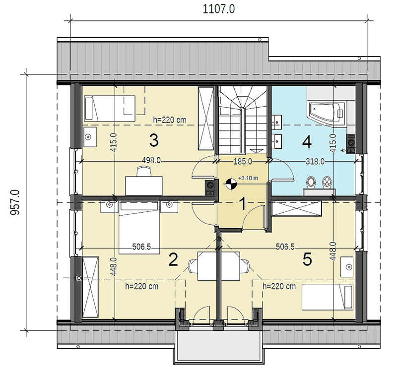
Sowa 1 bez garażu to prosty i wygodny dom utrzymany w ponadczasowej stylistyce, przeznaczony dla 4-5 osobowej rodziny. Kompaktowa bryła oparta na rzucie zbliżonym do kwadratu, pozwoliła na czytelny podział funkcjonalny wnętrza domu. Przestronną strefę dzienną, na którą składają się przede wszystkim pokój dzienny z jadalnią oraz przyległa do nich kuchnia, zaprojektowano na parterze. Poddasze w całości stanowi część prywatną domu z trzema ustawnymi pokojami oraz łazienką. Zaprojektowano optymalną wysokość ścianki kolankowej, co umożliwia uzyskanie komfortowej powierzchni mieszkalnej na poddaszu i zachowanie idealnych proporcji bryły obiektu. Stonowana kolorystyka elewacji przełamana drewnianą okładziną pozwoli na wpisanie się Sowy 1 bez garażu w niemal każde otoczenie.
TECHNOLOGIA BUDOWY
Posadowienie bezpośrednie na zbrojonych ławach i stopach fundamentowych wykonanych z betonu B 20. Ściany fundamentowe: murowane z bloczków betonowych M6. Ściany zewnętrzne: bloczki gazobetonowe gr. 25cm na zaprawie systemowej, ciepłochronnej, ocieplony styropianem fasadowym gr. 15cm. Do ocieplenia budynku zaprojektowano użycie styropianu grafitowego gr. 15 cm, o współczynniku „lambda” nie przekraczającym 0,031 W(mK) i „oporze cieplnym” nie mniejszym niż Rd – 4,0 m2k/W. Zastosowanie materiałów budowlanych (ocieplenie ścian, dachu, podłogi na gruncie, okien i drzwi zewnętrznych) użytych w projekcie odpowiada nowym wymaganiom obowiązującym od stycznia 2021 roku (WT2021). Ściany nośne wewnętrzne: bloczki gazobetonowe gr. 25cm na zaprawie cementowo-wapiennej lub systemowej. Ściany wewnętrzne działowe: bloczki gazobetonowe gr. 12cm. Strop gęstożebrowy z wypełnieniem pustakami betonowymi, zalewany wraz z wieńcami betonem B 20. Konstrukcja dachu: drewniana, drewno klasy C24, więźba dachowa krokwiowo-jętkowa. Budynek, w wersji podstawowej, jest zaprojektowany z pomieszczeniem kotłowni wyposażonej w kocioł ekologiczny na paliwo stałe, biomasę (granulat drzewny – pellet) i spełnia wszystkie wymagania dotyczące WT2021. Istnieje możliwość zamówienia dokumentacji projektowej w wersji ogrzewania gazowego ze wspomaganiem instalacją solarną lub ogrzewania nowoczesną pompa ciepła typu powietrze – woda i ogrzewaniem podłogowym. Standard energetyczny budynku, w każdej wersji ogrzewania jest w pełni spełniający wymagania WT2021, przegrody spełniają wymagania dla standardu NF40. Projekt pod względem konstrukcyjnym spełnia normy zgodne z Eurokodami.
"Dobre projekty powstają w doświadczonych pracowniach. Projektujemy domy już od 15 lat"















