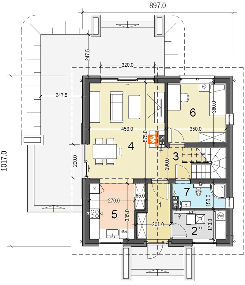
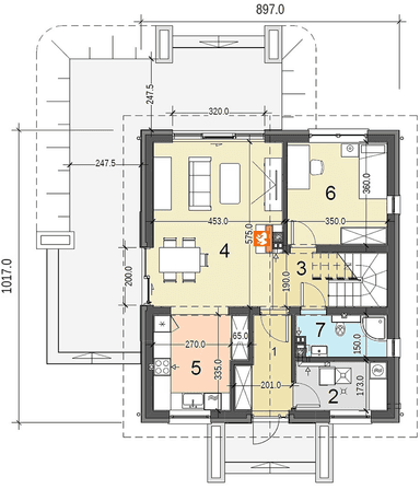
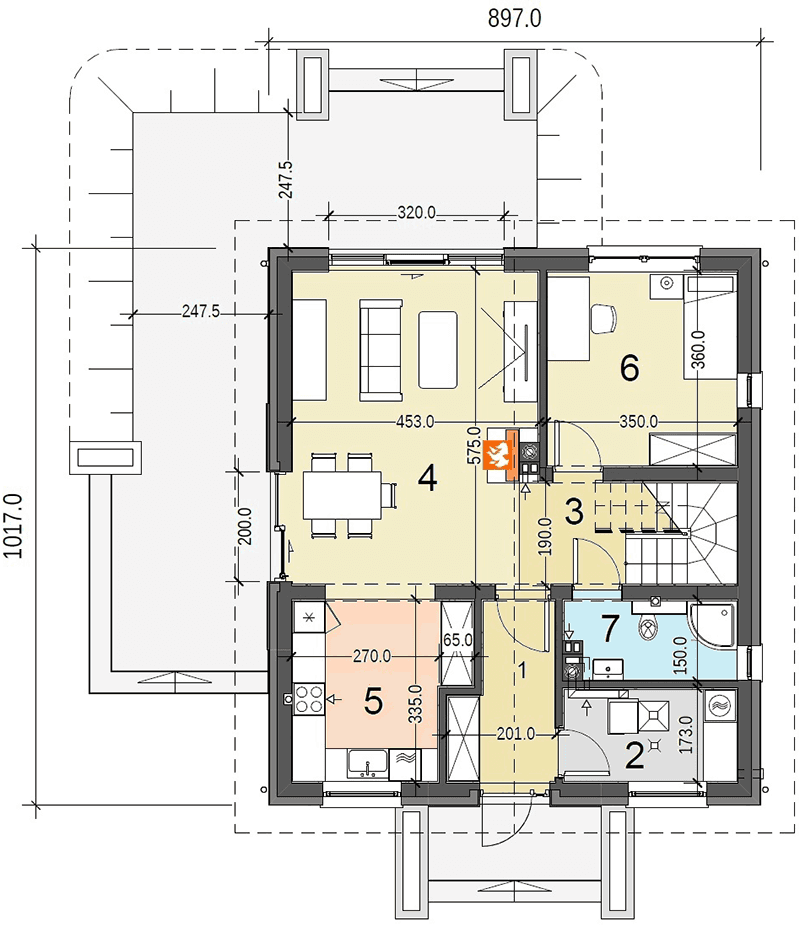
Dom Baset 1, został zaprojektowany dla potrzeb 4-ro lub 5-cio osobowej rodziny. Zwarta, kompaktowa bryła domu idealnie nadaje się na wąskie działki budowlane. Budynek jest przekryty dwuspadowym dachem o bardzo prostej konstrukcji drewnianej i kalenicy usytuowanej prostopadle do elewacji frontowej. Funkcjonalne, doskonale doświetlone wnętrza zakładają strefę dzienną na parterze oraz w pełni rozkładową strefę nocną na poddaszu. Przestronny, otwierający się na ogród salon z jadalnią, dopełniono zaprojektowanym tarasem który doskonale sprawdzi się jako miejsce na letnie posiłki. Dodatkowo na parterze zaprojektowano pomieszczenie mieszkalne które może służyć jako pokój gościnny lub pracownia. Na poddaszu, zaprojektowano optymalną wysokość ścianki kolankowej co pozwala na uzyskanie komfortowej powierzchni mieszkalnej w pokojach i zachowanie idealnych proporcji bryły obiektu. Budynek stanowi kompromis tradycyjnej formy, współczesnej estetyki oraz regionalnych materiałów, takich jak cegła klinkierowa, dachówka ceramiczna czy drewno. Ponadczasowa architektura tego zgrabnego, eleganckiego domu sprawia, że z łatwością wpisze się w niemal każdy krajobraz.
TECHNOLOGIA BUDOWY
Posadowienie bezpośrednie na zbrojonych ławach i stopach fundamentowych wykonanych z betonu B 20. Ściany fundamentowe: murowane z bloczków betonowych M6. Ściany zewnętrzne: bloczki gazobetonowe gr. 25cm na zaprawie systemowej, ciepłochronnej, ocieplony styropianem fasadowym gr. 15cm. Do ocieplenia budynku zaprojektowano użycie styropianu grafitowego gr. 15 cm, o współczynniku „lambda” nie przekraczającym 0,035 W(mK) i „oporze cieplnym” nie mniejszym niż Rd – 4,0 m2k/W. Zastosowanie materiałów budowlanych (ocieplenie ścian, dachu, podłogi na gruncie, okien i drzwi zewnętrznych) użytych w projekcie odpowiada nowym wymaganiom obowiązującym od stycznia 2021 roku (WT2021). Ściany nośne wewnętrzne: bloczki gazobetonowe gr. 25cm na zaprawie cementowo-wapiennej lub systemowej. Ściany wewnętrzne działowe: bloczki gazobetonowe gr. 12cm. Strop gęstożebrowy z wypełnieniem pustakami betonowymi, zalewany wraz z wieńcami betonem B 20. Konstrukcja dachu: drewniana, drewno klasy C24, więźba dachowa krokwiowo-jętkowa. Budynek, w wersji podstawowej, jest zaprojektowany z pomieszczeniem kotłowni wyposażonej w kocioł ekologiczny na paliwo stałe, biomasę (granulat drzewny – pellet) i spełnia wszystkie wymagania dotyczące WT2021. Istnieje możliwość zamówienia dokumentacji projektowej w wersji ogrzewania gazowego ze wspomaganiem instalacją solarną lub ogrzewania nowoczesną pompa ciepła typu powietrze – woda i ogrzewaniem podłogowym. Standard energetyczny budynku, w każdej wersji ogrzewania jest w pełni spełniający wymagania WT2021. Projekt pod względem konstrukcyjnym spełnia normy zgodne z Eurokodami.
"Dobre projekty powstają w doświadczonych pracowniach. Projektujemy domy już od 15 lat"




















