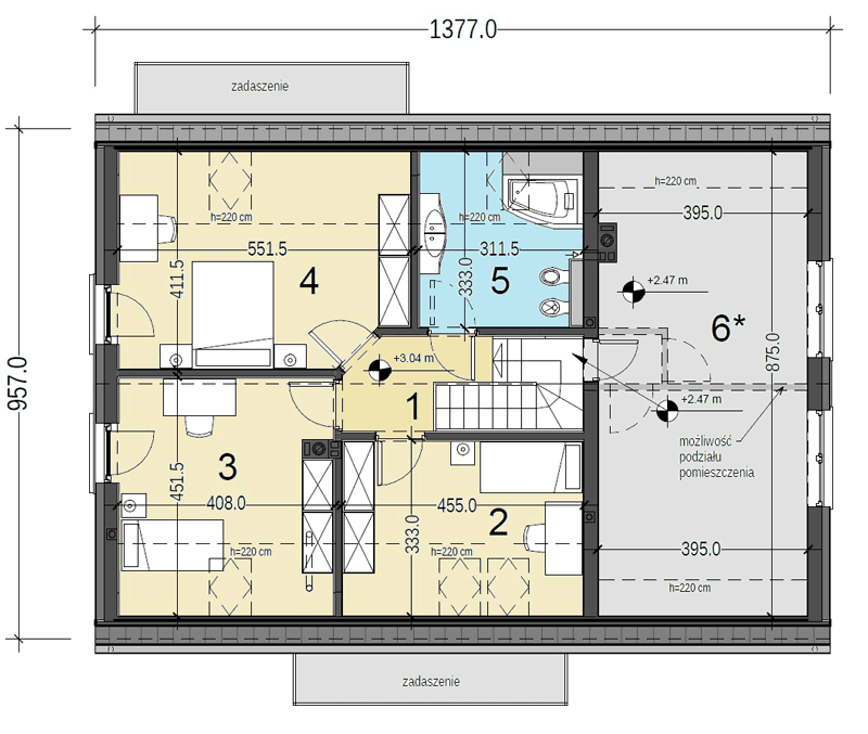
Projekt domu jednorodzinnego Jaskółka 8 z garażem to najnowsza wersja projektu „Jaskółka”. Projekt domuto budynek jest nowoczesny, przytulny i bardzo funkcjonalny. Dom został precyzyjnie zaprojektowany dla potrzeb 4-ro lub 5-cio osobowej rodziny. Kompaktowa, zwarta bryła domu, oparta na rzucie prostokąta, jest przykryta dwuspadowym dachem o bardzo prostej konstrukcji drewnianej. Powierzchnia dachu jest mniejsza, niż w poprzednich wersjach, poprzez zastosowanie nowoczesnego rozwiązania zminimalizowanych okapów dachowych. Zaprojektowano zadaszenie wejścia głównego do budynku i wyjścia na taras o prostej, drewnianej konstrukcji, co wpływa również korzystnie na ekonomię budowy. Dom zaprojektowano dodatkowo z bardzo przestronnym garażem jednostanowiskowym wbudowanym bryłę budynku. Proste i bardzo funkcjonalne wnętrze zakłada strefę dzienną wraz z pokojem gościnnym na parterze oraz w pełni rozkładową strefę nocną na poddaszu. Przestronny, otwierający się na ogród salon z jadalnią dopełniono częściowo zadaszonym tarasem, który doskonale sprawdzi się jako miejsce na letnie posiłki. Nad pomieszczeniem garażu i kotłowni znajduje się duży strych użytkowy. W miarę potrzeb, pomieszczenie strychu można podzielić na dwa mniejsze pokoje.
Optymalna wysokość ścianki kolankowej (106 cm w części mieszkalnej i 163 cm w części strychu), pozwala na uzyskanie komfortowej powierzchni mieszkalnej na poddaszu i zachowanie idealnych proporcji bryły obiektu. Budynek stanowi kompromis tradycyjnej formy, współczesnej estetyki oraz nowoczesnych materiałów, takich jak elewacyjna okładzina drewniana, czy szlachetna, gładka dachówka ceramiczna. Ponadczasowa architektura tego niewielkiego domu sprawia, że z łatwością wpisze się w niemal każdy krajobraz. Dom jest bardzo ekonomiczny w użytkowaniu i korzystny cenowo w budowie, doskonały w swojej prostocie.
TECHNOLOGIA BUDOWY
Posadowienie bezpośrednie na zbrojonych ławach i stopach fundamentowych wykonanych z betonu B 20. Ściany fundamentowe: murowane z bloczków betonowych M6. Ściany zewnętrzne: bloczki gazobetonowe gr. 24-25cm na zaprawie systemowej, ciepłochronnej, ocieplony styropianem fasadowym gr. 15cm. Do ocieplenia budynku zaprojektowano użycie styropianu grafitowego gr. 15 cm, o współczynniku „lambda” nie przekraczającym 0,031 W(mK) i „oporze cieplnym” nie mniejszym niż Rd – 4,0 m2k/W. Zastosowanie materiałów budowlanych (ocieplenie ścian, dachu, podłogi na gruncie, okien i drzwi zewnętrznych) użytych w projekcie odpowiada nowym wymaganiom obowiązującym od stycznia 2021 roku (WT2021). Ściany nośne wewnętrzne: bloczki gazobetonowe gr. 24-25cm na zaprawie cementowo-wapiennej lub systemowej. Ściany wewnętrzne działowe: bloczki gazobetonowe gr. 12cm. Strop gęstożebrowy typu „Terriva - E” z wypełnieniem pustakami betonowymi, zalewany wraz z wieńcami betonem B 20. Konstrukcja dachu: drewniana, drewno klasy C24, więźba dachowa krokwiowo-jętkowa. Budynek, w wersji podstawowej, jest zaprojektowany z pomieszczeniem kotłowni wyposażonej w kocioł ekologiczny na paliwo stałe, biomasę (granulat drzewny – pellet) i spełnia wszystkie wymagania dotyczące WT2021. Istnieje możliwość zamówienia dokumentacji projektowej w wersji ogrzewania gazowego ze wspomaganiem instalacją solarną lub ogrzewania nowoczesną pompa ciepła typu powietrze – woda i ogrzewaniem podłogowym (wersje dodatkowo płatne - zapytaj o cenę). Standard energetyczny budynku, w każdej wersji ogrzewania jest w pełni spełniający wymagania WT2021, przegrody spełniają wymagania dla standardu NF40. Projekt pod względem konstrukcyjnym spełnia normy zgodne z Eurokodami.
"Dobre projekty powstają w doświadczonych pracowniach. Projektujemy domy już od 15 lat"















