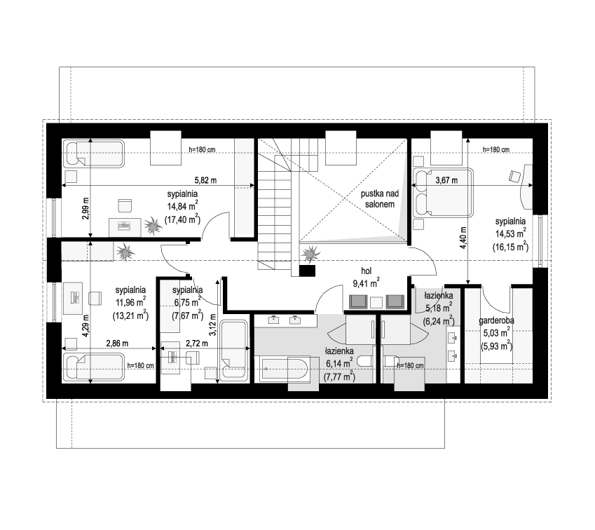
Projekt domu Dom na Zgrabnej 5, jest budynek parterowy z poddaszem użytkowym przeznaczonym dla 4- 5-osobowej rodziny. Budynek charakteryzuje się z jednej strony prostym i klarownym układem bryły i funkcji wnętrz, oraz z drugiej strony oryginalną nietuzinkową fasadą, idealną dla Inwestorów poszukujących oryginalnego wyrazu i ceniących cegłę jako trwały i ponadczasowy materiał wykończeniowy. Budynek jest parterowy z poddaszem użytkowym, zbudowany na planie prostokąta, w stylistyce nowoczesnej stodoły, przykryty dwuspadowym dachem z wysokimi ścianami kolankowymi poddasza. Front i elewację ogrodową dodatkowo urozmaicono zadaszeniami, z zastosowaniem kontrastowych materiałów i kolorystyki. Jednocześnie głównymi materiałami zastosowanymi za zewnątrz pozostaje cegła klinkierowa, oraz dachówka ceramiczna. Architektura domu jest minimalistyczna, z oszczędnym językiem detali. Od strony ogrodowej cała połać dachu może być przeznaczona do ułożenia paneli fotowoltaicznych. Duże przeszklenia otwierające wnętrze domu na taras i ogród, dodają bryle dynamicznego wyglądu i kontrastują z bardziej osłoniętym i zabudowanym frontem, mającym chronić wnętrze. Wejście do budynku podkreślone zostało kontrastowym wykończeniem ścian i liniowym podświetleniem zadaszenia nad podestem i schodami. Wnętrze domu podzielono na przestrzeń dzienną połączonych pomieszczeń salonu, holu i kuchni, oraz część garażowo-techniczną na parterze, oraz sypialnie/pokoje domowników na poddaszu. Parter i poddasze połączono przestrzennie pustką nad salonem - antresolą. Na poddaszu przewidziano cztery pokoje, w tym apartament rodziców z własną łazienką i garderobą, oddzielony od pozostałych sypialni antresolą i schodami. Minimalistyczna bryła domu i nowoczesne wydajne instalacje sprawiają, że budynek jest energooszczędny - będzie niedrogi i łatwy w późniejszej eksploatacji i utrzymaniu. Bazowo przyjęto ogrzewanie kotłem gazowym kondensacyjnym, lub pompą ciepła, ale można tutaj też zastosować kocioł na paliwo stałe. „Dom na Zgrabnej 5” to wygodny komfortowy dom, o nietuzinkowej oryginalnej architekturze, przyciągającej wzrok fasadzie, jednocześnie powściągliwej i nienarzucającej się stylistyce. Idealna propozycja dla Inwestorów planujących budowę solidnego, trwałego domu na lata, który przez długie lata będzie zawsze cieszył oko, nie zbudzi się i łatwo nie zestarzeje. Zapraszamy!
Materiały:
| Fundamenty: | betonowe ławy i ściany fundamentowe z bloczków betonowych |
| Ściany zewnętrzne: | ściany murowane - bloczki gazobeton + styropian |
| Strop: | monolityczny betonowy |
| Elewacje: | płytki klinkierowe + deska elewacyjna |
| Pokrycie dachu: | dachówka |















