Zx38: Nowoczesny Dom Pełen Przestrzeni i Światła
Zx38 to wyjątkowy projekt domu dla miłośników nowoczesnej architektury i funkcjonalnych rozwiązań. Ten zgrabny dom zachwyca ciekawym zestawieniem materiałów na elewacjach i innowacyjną formą dachu.
Przestrzeń i wygoda
Zx38 to przestronny dom o powierzchni użytkowej 132,9 m², idealny dla rodziny 4-5 osobowej. Zwarta bryła budynku z dwuspadowym dachem i jednym kominem zapewnia energooszczędność i niskie koszty budowy.
Komfortowe wnętrze
Na parterze znajduje się przestronny salon z jadalnią połączony z otwartą kuchnią. Kominek w salonie tworzy przytulną atmosferę, a duże okna zapewniają dużo naturalnego światła. Dodatkowy pokój na parterze może pełnić funkcję sypialni, gabinetu lub pokoju dla gości.
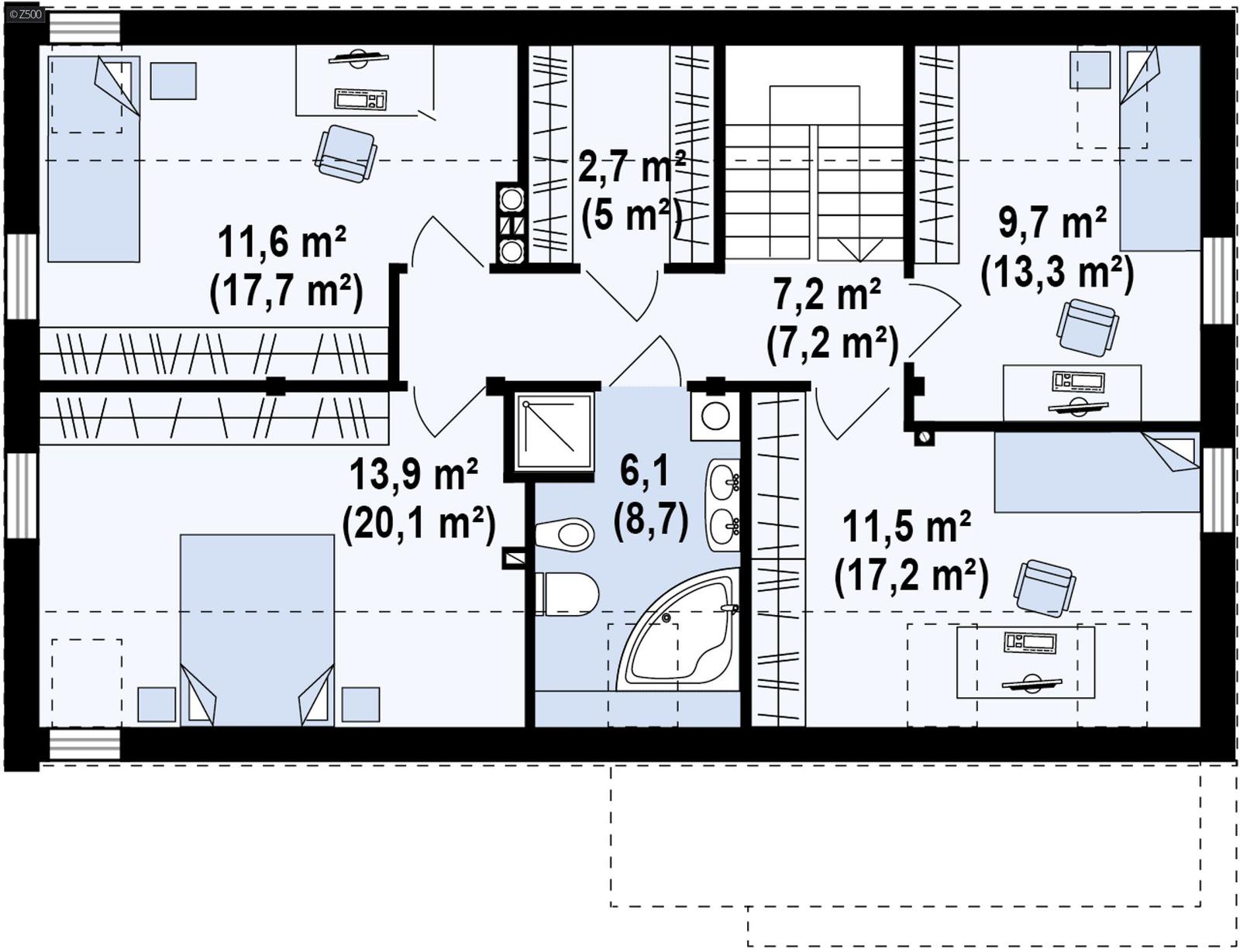
Piętro to prywatna strefa domowników. Znajdują się tam cztery sypialnie, duża łazienka i garderoba. Dwie sypialnie posiadają nowoczesne okna dachowe z pionowym naświetlem, zapewniając jeszcze więcej światła.
Zx38 - coś więcej niż dom tani dom
To nie tylko funkcjonalny i komfortowy dom, ale też miejsce pełne uroku. Ciekawe zestawienie materiałów na elewacjach i innowacyjna forma dachu nadają mu wyjątkowy charakter. Wysunięty przed bryłę domu garaż z atrakcyjnym zadaszeniem tworzy wygodną strefę wejściową.
Piętro oferuje cztery wygodne sypialnie, dużą łazienkę i garderobę. W dwóch sypialniach zaprojektowano nowoczesne okna dachowe z pionowym naświetlem, zapewniając dużo naturalnego światła.
Zx38 - idealny dla:
- Rodzin 4-5 osobowych
- Inwestorów ceniących nowoczesny design
- Osób szukających funkcjonalnego i komfortowego domu
- Zwolenników energooszczędnych rozwiązań













