Projekt domu Kamireno LUX to popularny, lubiany i sprawdzony projekt domu. ALANDRA 2M jest wyjątkowo funkcjonalnym i atrakcyjnym wizualnie domem, idealnym dla 3-6 osobowej rodziny. Posiada elegancką formę oraz współczesną estetykę, a także prostą, taną i dokładnie przemyślaną konstrukcję. Jest to budynek parterowy z użytkowym poddaszem, nieposiadający piwnicy, z dwustanowiskowym garażem.
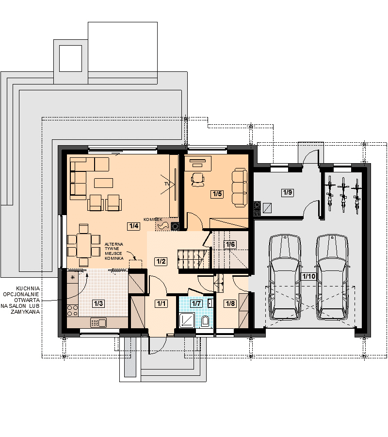
Bryła domu ma tradycyjny wygląd, a atrakcyjnym elementem architektonicznym jest lukarna umieszczona nad strefą wejściową. Na parterze znajduje się przestronna i wygodna strefa dzienna, składająca się z kuchni, jadalni oraz salonu, który jest otwarty na taras i ogród. Kuchnia może być zamykana lub otwarta, tworząc jedną strefę z jadalnią i salonem. Dzięki odpowiedniemu doświetleniu strefy dziennej zarówno od strony ogrodu, jak i z boku (od strony jadalni), dom nadaje się na każdą działkę, niezależnie od kierunku wjazdu (północ, południe, wschód lub zachód).
Dodatkowo, na parterze zaprojektowano pokój, który może pełnić rolę pokoju gościnnego, gabinetu lub pokoju dla najstarszego członka rodziny, łazienkę, garderobę (mogącą również pełnić funkcję pomieszczenia gospodarczego), garaż oraz kotłownię, która jest dostępna z garażu i ma wyjście na ogród, mogące również służyć jako miejsce składowania narzędzi ogrodowych. W wiatrołapie przewidziano miejsce na pojemną szafę wnękową.
Na poddaszu znajdują się trzy wygodne pokoje oraz funkcjonalna łazienka z wanną, kabiną prysznicową i pralką. Strych jest dostępny z półpiętra i może być przystosowany na dodatkowy pokój, garderobę, pralnię, siłownię, saunę lub salę kinową. Może również zostać podzielony na kilka pomieszczeń o różnych funkcjach, na przykład salę do gry w bilard z barem. W projektowaniu budynku ALANDRA 2M szczególną uwagę zwrócono na atrakcyjny i nowoczesny wygląd zewnętrzny, proporcjonalność bryły budynku, odpowiednie doświetlenie oraz funkcjonalne rozplanowanie pomieszczeń, przy jednoczesnym zachowaniu prostoty konstrukcji i zwartości bryły domu.
Projekty domów jednorodzinnych


















