BW-36 wariant 16 to funkcjonalny dom o powierzchni użytkowej 102,90 m², który wyróżnia się klasycznym stylem i kompaktową bryłą bez garażu. Dzięki przemyślanemu układowi pomieszczeń oraz zastosowaniu tradycyjnych rozwiązań, dom jest tani w budowie, a jego energooszczędność zapewnia niskie koszty eksploatacji. Projekt doskonale sprawdzi się na działkach o minimalnych wymiarach 19 x 20 m.
Przemyślany układ wnętrz w domu BW-36 (wariant 16)
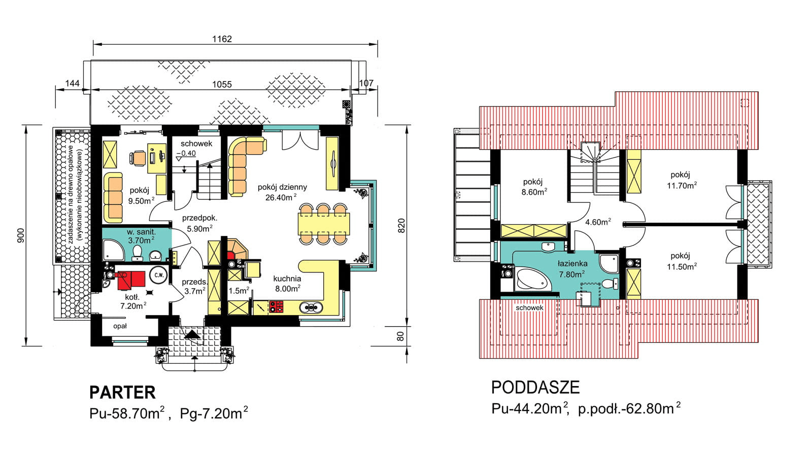
BW-36 wariant 16 oferuje funkcjonalny podział na strefy:
- Parter: Strefa dzienna obejmuje przestronny salon z kominkiem, jadalnię i kuchnię, tworząc komfortową przestrzeń do wspólnego spędzania czasu. Z salonu prowadzi wyjście na taras, który idealnie nadaje się do relaksu na świeżym powietrzu. Na parterze znajduje się również łazienka oraz praktyczne pomieszczenie gospodarcze.
- Poddasze użytkowe: Górna kondygnacja to strefa nocna, w której zaprojektowano trzy sypialnie i przestronną łazienkę. Sypialnie zapewniają prywatność i wygodę, a ich układ umożliwia różnorodne aranżacje.
Cechy charakterystyczne BW-36 wariant 16:
- Tradycyjny styl: Prosta bryła z dwuspadowym dachem o kącie nachylenia 42° wpisuje się w klasyczną architekturę.
- Użytkowe poddasze: Doskonałe rozwiązanie dla rodzin, które potrzebują wyraźnego podziału na strefy dzienną i nocną.
- Kominek: Centralny element salonu, który nadaje wnętrzu przytulności i może wspomagać ogrzewanie domu.
- Taras: Połączony z salonem, stwarza dodatkową przestrzeń do wypoczynku.
- Energooszczędność: Możliwość ogrzewania gazem lub paliwem stałym oraz wentylacja grawitacyjna zapewniają efektywne wykorzystanie energii.
Dane techniczne projektu:
- Powierzchnia zabudowy: 102,80 m²,
- Kubatura netto: 552,20 m³,
- Wysokość budynku: 8,22 m,
- Powierzchnia dachu: 157,60 m².
Najważniejsze zalety:
- brak garażu, co obniża koszty budowy,
- przestronny salon z wyjściem na taras, idealny do wypoczynku,
- trzy wygodne sypialnie na poddaszu użytkowym,
- tradycyjny design, który doskonale pasuje do każdego otoczenia,
- tani w budowie i eksploatacji dzięki prostej konstrukcji i energooszczędnym rozwiązaniom.
Dla kogo jest projekt BW-36 wariant 16?
Projekt BW-36 wariant 16 to doskonały wybór dla rodzin 4-osobowych szukających kompaktowego, ale funkcjonalnego domu w klasycznym stylu. Prosta konstrukcja i brak garażu sprawiają, że budowa jest bardziej ekonomiczna, a energooszczędne technologie zapewniają komfort użytkowania na co dzień. To idealny projekt dla osób ceniących tradycję i praktyczność.
Projekty domów lubianych i sprawdzonych.

















