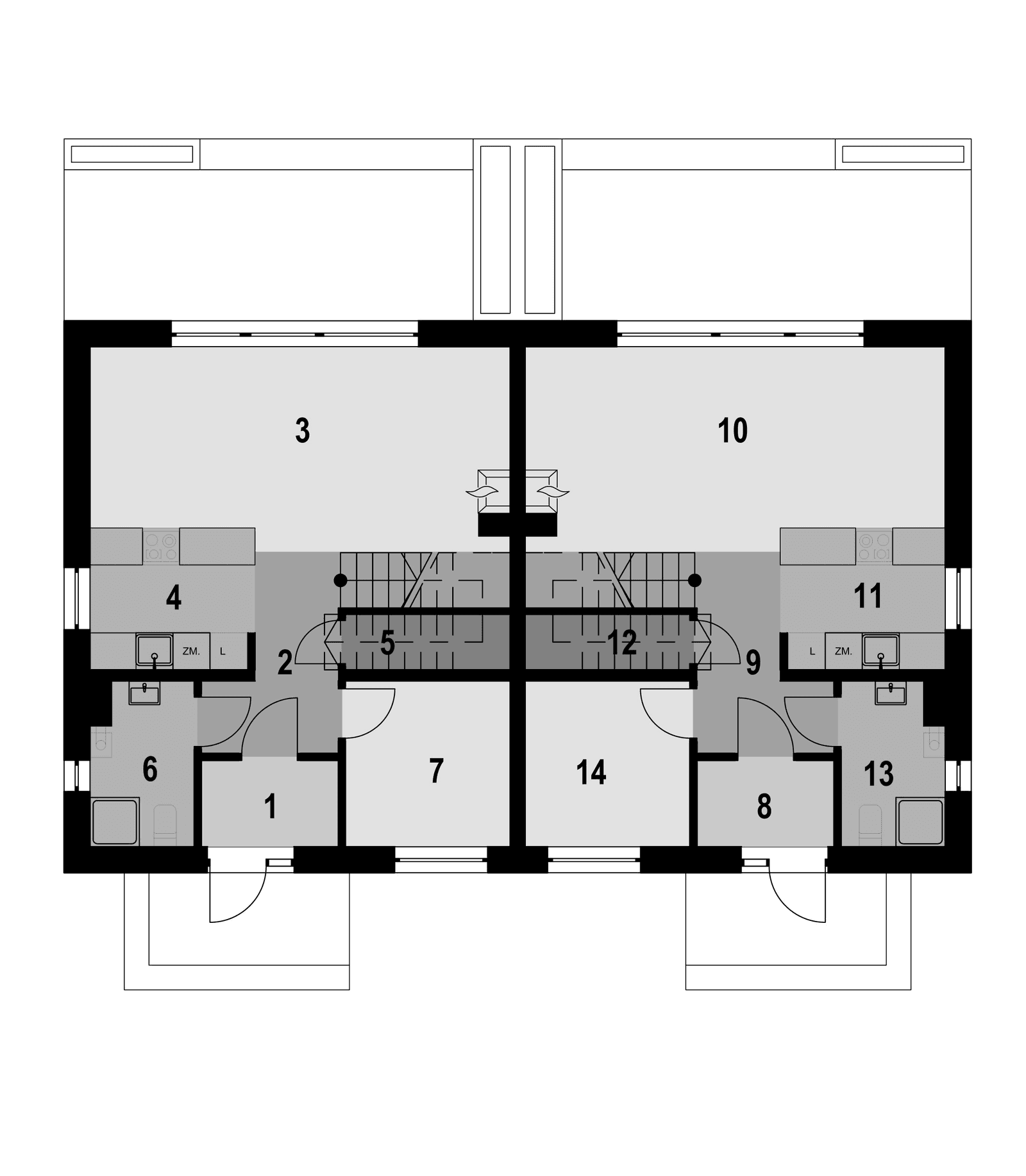
Wyjątkowy, ekonomiczny, lubiany i sprawdzony projekt w zabudowie bliźniaczej Eco 41.
Projekt jest perełką projektową i polecany do zabudowy bliźniaczej, wolnostojącej, szeregowej, uwielbiany przez deweloperów. Prosta bryła, optymalny program użytkowy i funkcjonalność.
Kolekcja zawiera warianty domów w zabudowie bliźniaczej, szeregowej i jako projekty dwulokalowe. Polecamy zgrabne, funkcjonale projekty z potencjałem.
















