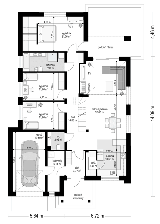
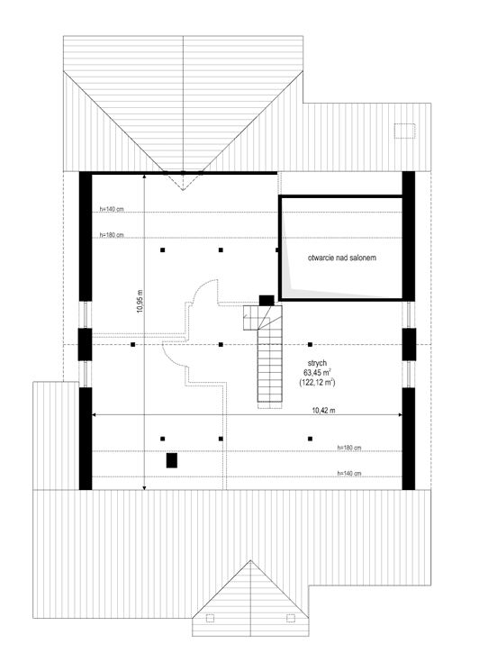
Projekt domu Parterowy wąski to projekt domu jednorodzinnego parterowego ze strychem / poddaszem do zagospodarowania, nawiązującego do popularnych projektów z serii ”Parterowy”. Tym razem jest to dom przewidziany na węższą działkę o szerokości poniżej 20 metrów - prezentujemy dwie wersje architektury: tradycyjną - Parterowy wąski 1 i nowoczesną – Parterowy wąski 2. Bryła budynku jest prostokątna, przykryta dwuspadowym dachem, z dobudowanym gankiem wejściowym, oraz wysuniętą sypialnią przykrytą poprzecznym zadaszeniem. Elewację frontową ozdobiono wejściowym portykiem z przeszklonymi drzwiami wejściowymi zapraszającymi do wnętrza. Od strony ogrodowej mamy szerokie przeszklone drzwi z salonu na taras i podcień. Nowoczesna architektura domu, duże przeszklenia, elewacje podzielone pasami zróżnicowanych okładzin dają w efekcie atrakcyjną sylwetkę budynku. Wnętrze parteru podzielone zostało na część dzienną - z salonem, cześć gospodarczą - z garażem i kotłownią, oraz sypialnie. Do wnętrza wchodzimy wygodnym przedsionkiem, do holu połączonego z salonem z jadalnią i kuchnią ze spiżarką. Salon ma podniesiony aż do dachu sufit nad częścią z meblami wypoczynkowymi, kominkiem i ścianą TV - otwarcie w stropie, przy założeniu zagospodarowania poddasza jako użytkowego, może być antresolą nad salonem z barierką. Na lewo od wejścia mamy kotłownię i garaż. Przechodząc w głąb domu, trafiamy do sypialni - rodziców z garderobami, dwóch dziecięcych i dużej łazienki. Nad parterem mamy do dyspozycji duży strych, który może być przestrzenią magazynową, albo można go wykorzystać jako dodatkowe poddasze użytkowe – jeśli zajdzie taka potrzeba. Projekt domu Parterowy wąski został zaprojektowany jako energooszczędny. Jego bardzo dobre izolacje, nowoczesne instalacje sprawią, że koszt eksploatacji budynku będzie niewielki. Projekt domu Parterowy wąski powinien przypaść do gustu osobom, które chcą postawić niewielki dom, z wszystkimi pomieszczeniami na parterze, w nowoczesnej atrakcyjnej architekturze, którzy dysponują dość wąską parcelą. Bryła budynku jest prosta - dom będzie łatwy do wybudowania. W wersji podstawowej projekt ma nad parterem strop żelbetowy monolityczny i tradycyjną więźbę dachową, ale projekt występuje też w drugiej wersji - bardziej ekonomicznej - z prefabrykowaną więźbą dachową i stropem z wiązarów kratownicowych, których wykonanie z montażem nasza pracownia MG Projekt oferuje w naszym zakładzie prefabrykacji MG Domy. Zapraszamy!
Materiały:
- Fundamenty betonowe ławy i ściany fundamentowe z bloczków betonowych
- Ściany zewnętrzne ściany murowane - pustaki porotherm 25 + styropian
- Strop monolityczny betonowy, lub wariantowo więźba i strop z wiązarów kratownicowych (MG Domy )
- Elewacje tynk cienkowarstwowy
- Pokrycie dachu dachówka















