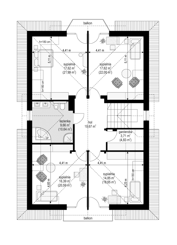
Projekt domu Weronika to uroczy domek jednorodzinny dla 4- 5-osobowej rodziny, parterowy z poddaszem użytkowym, zbudowany na planie prostokąta, przekryty czterospadowym dachem. Projekt domu Weronika dedykowany jest Inwestorom posiadającym dość wąską działkę, chcącym mimo to zbudować zgrabny, ładny dom nieprzypominający „tramwaju”. Spokojna w wyrazie architektura domu Weronika łączy w sobie tradycyjną formą ze współczesnymi detalami i nowoczesnymi materiałami oraz kolorystyką. Front domu zdobi duża symetryczna lukarna z balkonem będącym jednocześnie zadaszeniem podestu wejściowego. Wejście zaakcentowano podcieniem wykończonym klinkierem. Elewację ogrodową zdobi podobna lukarna z balkonem, oraz wykusz aneksu jadalnego, oraz podcień salonu, przekrywający część tarasu. Wnętrze Weroniki podzielono na część dzienną i pomieszczenia techniczne na parterze, oraz pokoje sypialne na poddaszu. Na dole, bardzo ładne wnętrze, z eleganckim holem z reprezentacyjnymi schodami, przechodzi w salon z ciekawie zaprojektowanym aneksem jadalnym z widokiem na ogród, oraz otwartą na salon kuchnią. W pobliżu wejścia znajduje się dodatkowy pokój – gabinet lub extra sypialnia. Na parterze znajdują się też: wbudowany w bryłę garaż, oraz kotłownia. Na poddaszu zaprojektowano cztery sypialnie, dużą wspólną łazienkę i garderobę dostępną z holu. W łatwy sposób można zamienić ogrodowe sypialnie na apartament rodziców z osobną łazienką i garderobą – jeśli jest taka potrzeba. Nad poddaszem znajduje się duży, bardzo przydatny strych. Projekt domu Weronika jest budynkiem o prostej konstrukcji, niedrogim w realizacji, energooszczędnym. Dom pasować będzie na wąską działkę. Pracownia posiada wersję odbicia lustrzanego projektu.
Materiały:
- Fundamenty betonowe ławy i ściany fundamentowe z bloczków betonowych
- Ściany zewnętrzne ściany murowane - pustaki porotherm 25 + styropian + tynk cienkowarstwowy
- Strop Teriva
- Elewacje tynk cienkowarstwowy na styropianie
- Pokrycie dachu dachówka













