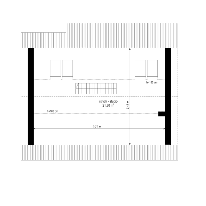
Projekt domu Bonifacy to niewielki, parterowy domek jednorodzinny, dla 3- 4-osobowej rodziny. Dom przekryty został dwuspadowym dachem. Nad parterem zaprojektowano nieużytkowy strych, który z łatwością można zaadaptować na poddasze z dodatkowymi pokojami. Projekt domu Bonifacy, dzięki prostej bryle jest łatwy i niedrogi w budowie. Będzie też tani w późniejszej eksploatacji. Ładnie zaakcentowany podest wejściowy, fragmenty ścian z okładziną drewnianą oraz płytkami klinkierowymi, podcień i taras ogrodowy ze ślicznym narożnym oknem z salonu - wszystkie te elementy powodują, że na domek patrzy się z przyjemnością. We wnętrzu zaprojektowane zostały trzy pokoje - dwie sypialnie i pokój dzienny, połączony z holem i kuchnią z kącikiem jadalnym. Dodatkowe pomieszczenia to kotłownia dostępna z przedsionka i łazienka. Strych, na który wchodzimy schodami z holu można zaadaptować na poddasze użytkowe, lub można go w ogóle zamknąć - likwidując też schody. Pracownia posiada też wersję odbicia lustrzanego projektu Bonifacy.
Materiały:
- Fundamenty betonowe ławy i ściany fundamentowe z bloczków betonowych
- Ściany zewnętrzne ściany murowane - pustaki porotherm 25 + styropian + tynk cienkowarstwowy
- Strop Teriva
- Elewacje tynk cienkowarstwowy na styropianie
- Pokrycie dachu dachówka













