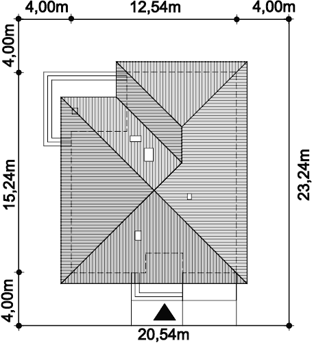
Klasyczny, parterowy dom przeznaczony dla 3-4 osobowej rodziny. Do dyspozycji mieszkańców, jest jasny, przestronny salon, otwarta kuchnia, trzy ustawne pokoje, łazienka oraz toaleta. Z pokoju dziennego wychodzimy wprost na taras. Projektant nie zapomniał o praktycznym podcieniu, który latem daje schronienie przed słońcem. W bezpośrednim sąsiedztwie kuchni znajduje się pomieszczenie gospodarcze, z którego można wydostać się także na zewnątrz budynku. W domu zaprojektowano ogrzewanie na paliwo stałe, można je jednak zmienić na etapie adaptacji np. na gazowe. Wprost z wiatrołapu dostajemy się do jednostanowiskowego garażu. Prawdziwą zaletą jest jednak obszerna garderoba, która znajduje się na wprost wejścia do domu. Można ją usunąć zyskując miejsce na schody prowadzące na strych. Przestrzeń na poddaszu możemy zaadoptować na gabinet lub pokój hobby. Nieskomplikowana bryła powoduje, że dom jest prosty i tani w budowie oraz późniejszej eksploatacji. Budynek zaprojektowano w oparciu o najnowsze przepisy prawa budowlanego, z dużą dbałością o jego wpływ na środowisko naturalne.
Uwaga! Dokumentacja Projektowa nie zawiera elementów małej architektury takich jak: donice, podesty, altany, grille ogrodowe, murki, pergole, a także innych elementów wizualizacji, takich jak: garaże i wiaty wolnostojące, drogi, podjazdy, ogrodzenia, baseny itp.
Tanie w budowie projekty domów, funkcjonalne układy pomieszczeń.
















