PUK 3 jest powiększoną wersją projektu PUK 2. Jest to klasyczny dom w nowoczesnej aranżacji, planując jego układ zadbano o maksymalną wygodę przyszłych domowników. Optymalny program użytkowy zawarto w eleganckiej i zarazem prostej formie, a sprawdzone i proste rozwiązania konstrukcyjne oraz zwarta, pozbawiona niepotrzebnych detali architektonicznych bryła pozwolą wybudować dom za rozsądne pieniądze i będą miały wpływ na niski poziom kosztów jego użytkowania.
Do wnętrza domu dostajemy się przez gustowny podcień i sporych rozmiarów wiatrołap, z którego wejdziemy też do szerokiego, jednostanowiskowego garażu. Za garażem zaplanowano sporą kotłownię, w której zaprojektowano dwa rodzaje ogrzewania: GAZOWE oraz na PALIWO STAŁE-biomasę. Dzięki takiemu rozwiązaniu, projektu nie trzeba przerabiać, Inwestor sam decyduje, który rodzaj ogrzewania zastosuje w swoim domu - dokumentacja zawiera schematy i rozwinięcia instalacji c.o. i elektrycznych, obydwu sposobów ogrzewania. W korytarzu przy wiatrołapie znajduje się łazienka z kabiną prysznicową. W głębi budynku, za klatką schodową, umieszczono z kolei pokój – idealne miejsce na gabinet. Najbardziej reprezentacyjną część parteru zajmuje jasny, wygodny pokój dzienny z jadalnią oraz przylegającą doń kuchnią ze spiżarnią. Kuchnię w razie potrzeby można oddzielić od pozostałych pomieszczeń.
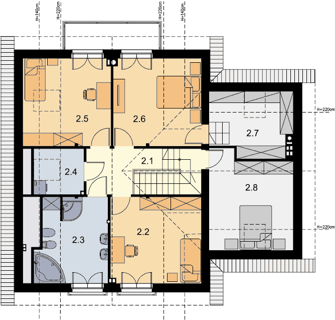
Poddasze to typowa strefa nocna, 3 ustawne pokoje, łazienka z miejscem na wannę i prysznic oraz praktyczna pralnia, którą ewentualnie można przekształcić w garderobę. Prawdziwym atutem projektu PUK 3 jest natomiast pomieszczenie nad garażem, ścianka kolankowa ma tu aż 140 cm wysokości, co gwarantuje wygodę korzystania z tej przestrzeni. Wstępnie powierzchnię tę podzielono na 2 pomieszczenia: garderobę dostępną z głównej sypialni, do której dostaniemy się po kilku stopniach oraz strych dostępny ze spocznika schodów, który można zamienić np. na dodatkowy pokój. Pomieszczenia te można oczywiście połączyć, tworząc jedno duże.
Budynek zaprojektowano w oparciu o najnowsze przepisy prawa budowlanego, z dużą dbałością o jego wpływ na środowisko naturalne.
Uwaga! Dokumentacja Projektowa nie zawiera elementów małej architektury takich jak: donice, podesty, altany, grille ogrodowe, murki, pergole, a także innych elementów wizualizacji, takich jak: garaże i wiaty wolnostojące, drogi, podjazdy, ogrodzenia, baseny itp.
Tanie w budowie projekty domów, funkcjonalne układy pomieszczeń.






















