Powiększona wersja popularnego projektu Ajaks Bis. Budynek oferuje jeszcze więcej przestrzeni przy zachowaniu tego samego, praktycznego układu funkcjonalnego. Na parterze domu znajduje się przestronny, dobrze oświetlony salon, o powierzchni powyżej 30m², sąsiaduje z nim dodatkowy pokój, który można przeznaczyć na gabinet lub pokój gościnny. Otwarta kuchnia z praktyczną spiżarnią może być oddzielona, w razie potrzeby, od pokoju dziennego ścianką działową. Z przodu budynku znalazła się łazienka i pomieszczenie gospodarcze, przez które dostajemy się wprost do garażu. Za garażem zlokalizowano sporą kotłownię z bezpośrednim wyjściem do ogrodu.
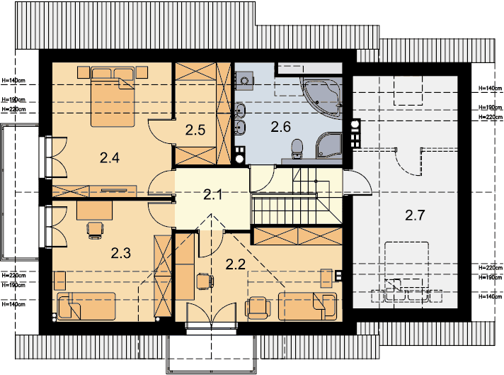
Jest ona na tyle duża, że bez trudu pomieści piec na ekogroszek. W budynku zaprojektowano dwa rodzaje ogrzewania: GAZOWE oraz na PALIWO STAŁE (projekt zawiera schematy i rozwinięcia instalacji c.o. i elektrycznych, obydwu sposobów ogrzewania). Inwestor zadecyduje, które z nich wykorzysta. Na piętrze znajdują się trzy ustawne pokoje i duża łazienka z miejscem na wannę i prysznic. Główna sypialnia została połączona z przestronną garderobą, ze spocznika schodów dostaniemy się natomiast do pomieszczenia nad garażem, które może pełnić rolę strychu, miejsca zabaw lub po prostu dodatkowego pokoju. Dom jest prosty i tani w budowie, jego elewację wykończono w eleganckim i nowoczesnym stylu.
Oryginalnie zaprojektowano wentylację grawitacyjną oraz, jako alternatywę, wentylację mechaniczną z rekuperacją. Budynek opracowano w oparciu o najnowsze przepisy prawa budowlanego, z dużą dbałością o jego wpływ na środowisko naturalne.
Uwaga! Dokumentacja Projektowa nie zawiera elementów małej architektury takich jak: donice, podesty, altany, grille ogrodowe, murki, pergole, a także innych elementów wizualizacji, takich jak: garaże i wiaty wolnostojące, drogi, podjazdy, ogrodzenia, baseny itp.
Tanie w budowie projekty domów, funkcjonalne układy pomieszczeń.























