EKPRESYJNY D73 to nowoczesny parterowy dom przeznaczony na szeroką działkę. Idealny dla 4-5 osobowej rodziny ceniącej sobie komfort i walory estetyczne.
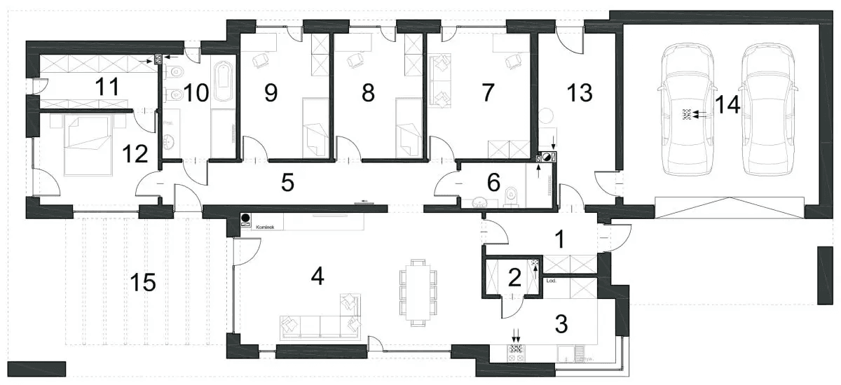
Dom jest otoczony ramą, która tworzy zadaszenie nad wejściem do domu oraz wjazdem do garażu. Za drzwiami wejściowymi znajduje się wygodny wiatrołap z miejscem na szafę, zapewniający sprawną komunikację pomiędzy częścią dzienną a techniczną. W strefie dziennej zaprojektowano przestronny salon z kominkiem, miejscem na duży stół oraz wyjściem na spory zewnętrzny taras. Obok salonu od frontu znajduje się kuchnia z narożnym oknem i spiżarnią. W części nocnej zaprojektowano cztery wygodne sypialnie, dwie łazienki, z czego mniejsza jest dedykowana strefie dziennej. Dodatkowo sypialnia gospodarzy posiada prywatną garderobę. Sprawną komunikację w tej strefie zapewnia korytarz oddzielony od salonu przesuwnymi drzwiami. W części technicznej znajduje się pomieszczenie techniczne z wyjściem do ogrodu oraz dwustanowiskowy garaż.
Dom charakteryzuje się prostokątną bryłą połączona ramami i przenikającymi częściami budynku, co nadaje domowi ekstrawagancji i niepowtarzalności. Elewacja budynku to połączenie bieli i szarości oraz wstawek z drewna.
Autor projektu: mgr inż. arch. Ewelina Grochowska
Technologie
Fundamenty ławy fundamentowe żelbetowe monolityczne
Ściany fundamentowe bloczki betonowe
Ściany konstrukcyjne pustaki silikatowe o grubości 24 cm
Ściany działowe pustaki gazobetonowe o grubości 12 cm
Stropy żelbetowe monolityczne
Dach stropodach
Ewelina Grochowska













