Dom Jednorodzinny z Modułową Perspektywą Rozwoju – Przestrzeń, Która Rośnie Razem z Twoją Rodziną.
Odkryj innowacyjny projekt domu jednorodzinnego, który łączy w sobie nowoczesny design, funkcjonalność i elastyczność rozbudowy. Stworzony z myślą o rodzinach, które cenią sobie komfort i możliwość dostosowania przestrzeni do zmieniających się potrzeb.
Kluczowe zalety projektu:
Modułowa elastyczność:
- Projekt umożliwia etapową rozbudowę domu poprzez dodawanie kolejnych modułów, co pozwala na dostosowanie przestrzeni do rosnących potrzeb rodziny.
- Elastyczność w aranżacji wnętrz, dzięki możliwości zmiany układu pomieszczeń w poszczególnych modułach.
- Nowoczesny design i funkcjonalność:
- Przemyślany układ pomieszczeń zapewnia komfortową przestrzeń do życia, z naciskiem na jasne i przestronne wnętrza.
- Możliwość indywidualnego dostosowania wykończenia i aranżacji.
Kompletna dokumentacja:
- Oferujemy gotowy projekt architektoniczno-budowlany, niezbędny do uzyskania pozwolenia na budowę.
- Projekty techniczne/wykonawcze poszczególnych modułów dostępne na indywidualne zamówienie.
Inwestycja z perspektywą:
- Projekt pozwala na etapowe inwestowanie w rozbudowę domu, co ułatwia zarządzanie budżetem.
- Wzrost wartości nieruchomości wraz z rozbudową.
Dlaczego warto wybrać nasz projekt?
Przyszłościowe rozwiązanie:
Inwestujesz w dom, który może rosnąć razem z Twoją rodziną, bez konieczności przeprowadzki.
Indywidualne podejście:
Możliwość dostosowania projektu do własnych preferencji i potrzeb.
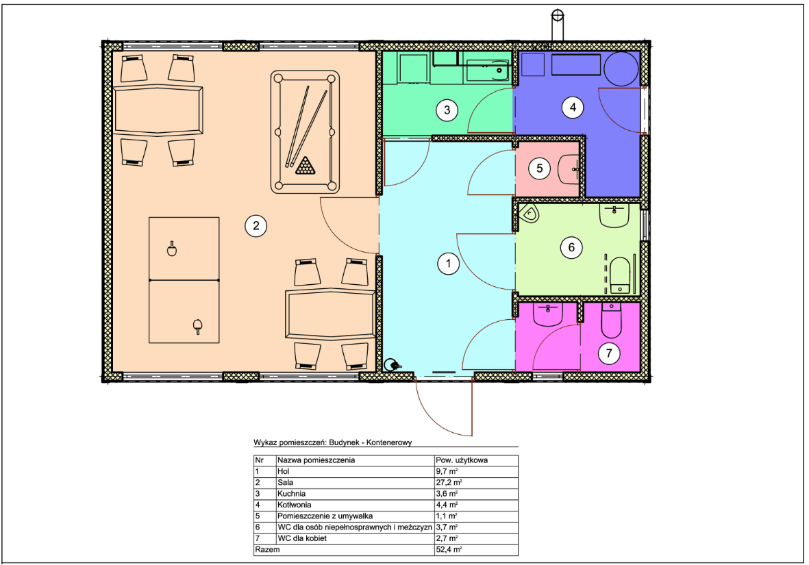
Projekt Architektoniczny: Szczegółowo przedstawia rozwiązania architektoniczne budynku. Składa się z:
- Rzutów wszystkich kondygnacji: Pokazują układ funkcjonalny pomieszczeń na każdym poziomie, ich wymiary, powierzchnie, rozmieszczenie drzwi i okien, wyposażenie stałe (np. kominki, schody), a także oznaczenia materiałów wykończeniowych podłóg.
- Rzutu dachu: Przedstawia kształt dachu, jego konstrukcję, spadki, rozmieszczenie kominów, wyłazów dachowych, paneli fotowoltaicznych (jeśli są przewidziane) oraz materiał pokrycia.
- Elewacji: Pokazują wygląd zewnętrzny budynku z każdej strony, z uwzględnieniem materiałów wykończeniowych ścian, stolarki okiennej i drzwiowej, detali architektonicznych oraz kolorystyki.
- Przekrojów: Ilustrują budowę budynku w pionie, pokazując powiązanie poszczególnych kondygnacji, wysokość pomieszczeń, konstrukcję stropów, dachu, fundamentów oraz warstwy przegród budowlanych (ściany, stropy, dach).
- Zestawienia stolarki okiennej i drzwiowej: Zawierają wymiary, typy i ilości okien oraz drzwi zewnętrznych i wewnętrznych.
- Opisu technicznego architektury: Zawiera informacje o zastosowanych materiałach budowlanych i wykończeniowych, rozwiązaniach konstrukcyjnych (ogólnych), charakterystyce energetycznej budynku (w zakresie architektury), a także o spełnieniu wymagań akustycznych i przeciwpożarowych (w zakresie rozwiązań architektonicznych).
Projekty domów jednorodzinnych Nasza pracownia oferuje szeroki wybór projektów domów jednorodzinnych, które spełnią oczekiwania każdego inwestora. W naszej ofercie znajdują się domy parterowe, z poddaszem i piętrowe, o powierzchni użytkowej od 50 do ponad 200 m2. Domy jednorodzinne z naszej pracowni charakteryzują się wysoką funkcjonalnością i estetyką. Przy ich projektowaniu uwzględniliśmy wszystkie potrzeby domowników, dbając o to, aby każdy dom był idealnym miejscem do życia. Projekty w technologii drewnianej Drewniane domy jednorodzinne to coraz popularniejsze rozwiązanie. Drewno jest materiałem naturalnym, który zapewnia komfortowy i zdrowy mikroklimat w domu. Domy drewniane są również energooszczędne, co przekłada się na niższe koszty eksploatacji. W naszej pracowni oferujemy projekty domów drewnianych w różnych stylach, od klasycznych po nowoczesne. Projekty jednorodzinne w technologii tradycyjnej Domy jednorodzinne w technologii tradycyjnej to sprawdzone rozwiązanie, które cieszy się niesłabnącą popularnością. Domy te są trwałe i solidne, a ich budowa jest stosunkowo niedroga. W naszej pracowni oferujemy projekty domów jednorodzinnych w technologii tradycyjnej w różnych stylach, od klasycznych po nowoczesne. Projekty typu nowoczesna stodoła Domy typu nowoczesna stodoła to nowoczesne i stylowe rozwiązanie, które zyskuje coraz więcej zwolenników. Domy te charakteryzują się prostą bryłą i dużymi przeszkleniami, które zapewniają mnóstwo światła dziennego. W naszej pracowni oferujemy projekty domów typu nowoczesna stodoła w różnych rozmiarach i stylach. Domy ekonomiczne Domy ekonomiczne to rozwiązanie dla osób, które chcą wybudować dom bez nadmiernego obciążania swojego budżetu. Domy te są zaprojektowane tak, aby były energooszczędne i łatwe w budowie. W naszej pracowni oferujemy projekty domów ekonomicznych w różnych stylach i rozmiarach.










