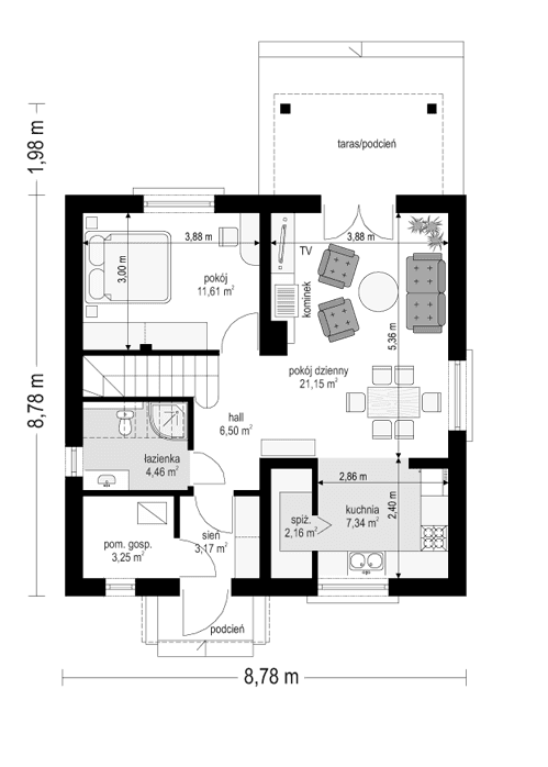
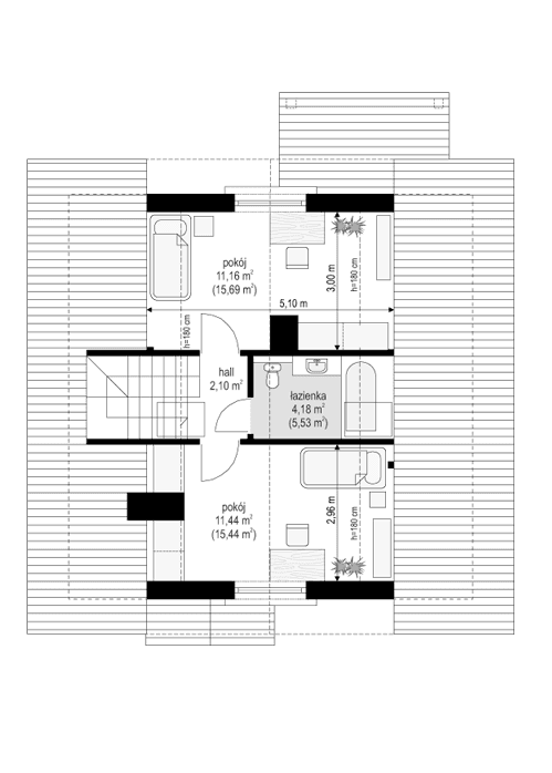
Projekt domu Pchełka to jedna z nowszych propozycji pracowni. Jest to dom przeznaczony dla 4- 5-osób. Może być wykorzystany jako jednorodzinny dom całoroczny, lub jako domek letniskowy. Prosta bryła budynku zaprojektowana została na planie kwadratu i przekryta dwuspadowym dachem. Elewacje ozdobione została ładnymi okapami, daszkami wejściowymi i ogrodowymi. Projekt domu Pchełka posiada zróżnicowaną elewację - parter zaprojektowano jako tynkowany, poddasze - obłożone okładziną drewnianą. Domek jest bardzo zgrabny, ma dobrze dobrane proporcje i skalę. Ze względu na klarowny układ konstrukcji budowa domu powinna być łatwa i niedroga. We wnętrzu domu, na parterze zaplanowano salon z częścią jadalną połączony z kuchnią, pomieszczenie gospodarcze, łazienka i pokój - sypialnia rodziców. Na poddaszu z kolei zaplanowano dwie sypialnie dzieci i łazienkę. Dom Pchełka został zaprojektowany tak, aby możliwe było wykończenie poddasza w drugim etapie. Dostępne jest odbicie lustrzane projektu oraz wersja z garażem (Projekt domu Pchełka z garażem). Zapraszamy!
Materiały:
- Fundamenty betonowe wylewane
- Ściany zewnętrzne dwuwarstwowe beton komórkowy 24 + 15 styropian (lub wełna mineralna)
- Strop Teriva
- Elewacje tynk cienkowarstwowy
- Pokrycie dachu blachodachówka lub dachówka













