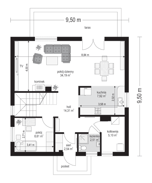
Projekt domu Małgosia to jednorodzinny domek parterowy z poddaszem użytkowym, dla rodziny 4- 6-osobowej. Dom Małgosia zbudowany został na planie kwadratu 9,5x9,5 m, przekryty dwuspadowym dachem. Istotą projektu jest prostota bryły w połączeniu z dobrze dobranymi proporcjami i ciekawym detalem. Projekt domu Małgosia zaprojektowano w technologii murowanej. Wewnątrz budynek podzielono na dzienną część na parterze i sypialnie na poddaszu. Na dole, prócz dużego salonu z aneksem jadalnym, holu i półotwartej kuchni, zaprojektowano dodatkowy pokój - gabinet lub sypialnię, wc z natryskiem, oraz kotłownię. Na poddaszu przewidziano trzy wygodne sypialnie i dużą łazienkę. Sypialnia rodziców ma dodatkowo garderobę. W sypialniach dzieci są wbudowane szafy. Dom ma prostą konstrukcję, jest łatwy w budowie i będzie niedrogi w późniejszej eksploatacji. Pracownia posiada wersję ze stropem Teriva oraz odbicie lustrzane projektu domu Małgosia.
Materiały:
- Fundamenty betonowe ławy i ściany fundamentowe z bloczków betonowych
- Ściany zewnętrzne ściany murowane - bloczki silikatowe + styropian + tynk cienkowarstwowy
- Strop drewniany/Teriva
- Elewacje tynk cienkowarstwowy na styropianie
- Pokrycie dachu dachówka













