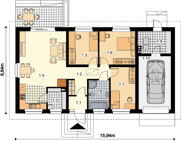
Nowa wersja popularnego projektu, w której przewidziano ogrzewanie na PALIWO STAŁE. Ten niewielki dom parterowy doskonale nadaje się dla 3 - 4 osobowej rodziny. Jego zaletami są: funkcjonalność, prosta bryła budynku i niskie koszty budowy oraz późniejszej eksploatacji. Wnętrze domu zostało podzielone na dwie strefy dzienną i nocną. W ciągu dnia mieszkańcy mogą relaksować się w przestronnym, dobrze oświetlonym salonie, połączonym z otwartą kuchnią, w sąsiedztwie której znajduje się pomieszczenie gospodarcze, pełniące jednocześnie rolę spiżarni. Strefa nocna to 3 ustawne pokoje oraz duża, jasna łazienka, w której przewidziano miejsce na wannę i prysznic. Dom posiada niewielki stryszek, na który prowadzą składane schody w korytarzu. Centralne usytuowanie kominka pozwala rozważyć również ten sposób ogrzewania. Jednostanowiskowy garaż wraz z przylegającym do niego pomieszczeniem gospodarczym stanowi jedność z bryłą budynku, dzięki takiemu zabiegowi uzyskano kotłownię o maksymalnie dużej powierzchni. Posiada ona praktyczne wyjście na ogród. Elewację budynku można wykończyć zarówno w sposób klasyczny jak i nowoczesny. Dom zaprojektowano w oparciu o najnowsze przepisy prawa budowlanego z dużą dbałością o jego wpływ na środowisko naturalne.
Uwaga! Dokumentacja Projektowa nie zawiera elementów małej architektury takich jak: donice, podesty, altany, grille ogrodowe, murki, pergole, a także innych elementów wizualizacji, takich jak: garaże i wiaty wolnostojące, drogi, podjazdy, ogrodzenia, baseny itp.
Tanie w budowie projekty domów, funkcjonalne układy pomieszczeń.























