Jaskółka 5 z garażem XL - idealny dom dla rodziny
Projekt domu Jaskółka 5 z garażem XL to projekt należący do projektów najbardziej topowych na liście projektów lubianych i sprawdzonych. Tradycyjna, ponadczasowa stylistyka, z ponadczasowymi nowoczesnymi elementami.
- Jaskółka 5 XL - Popularny dom z poddaszem
Dom Jaśkołek 5 z garażem XL to jeden z najpopularniejszych projektów domów z poddaszem. Projekt ten jest wybierany przez wielu inwestorów, ponieważ jest funkcjonalny, energooszczędny i stosunkowo niedrogi.
- Tani w budowie dom Jaskółka 5 XL
Dom Jaśkołka 5 z garażem XL jest stosunkowo niewielki, co sprawia, że jego budowa jest tańsza niż w przypadku większych domów. Ponadto, dom został zaprojektowany z uwzględnieniem zasad energooszczędności, dzięki czemu koszty jego utrzymania są niskie.
Dom Jaśkołka 5 z garażem XL zachwyca swoim eleganckim wyglądem. Prosta, symetryczna bryła sprawia, że budynek wygląda nowocześnie i stylowo. Jasne elewacje z drewnianymi elementami nadają mu przytulny charakter.
- Funkcjonalne wnętrza w domu Jaskółka 5 XL
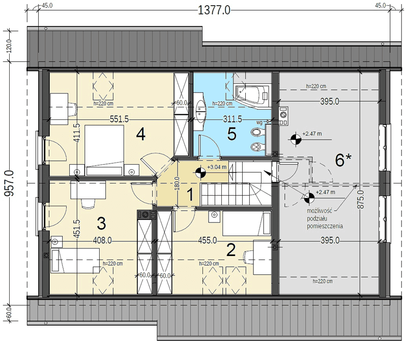
Dom Jaśkołek 5 z garażem XL jest bardzo funkcjonalny. Na parterze znajduje się salon z aneksem kuchennym, który jest połączony z jadalnią. To idealne miejsce do spotkań rodzinnych i towarzyskich. Na parterze znajduje się również garaż, pokój gościnny i łazienka. Na poddaszu znajdują się trzy sypialnie i łazienka.
- Wygoda użytkowania dla domu Jaskółka 5 XL
Dom Jaśkołek 5 z garażem XL jest bardzo wygodny w użytkowaniu. Na parterze znajdują się wszystkie najważniejsze pomieszczenia, takie jak salon, kuchnia, łazienka i garaż. Dzięki temu dom jest bardzo praktyczny i łatwy w utrzymaniu.
Podstawowe cechy projektu domu Jaskółka 5 z garażem XL:
- proejkt z dachem dwuspadowy
- projekt tani w budowie
- popularny dom z poddaszem
Opinie na temat Jaskółka 5 z garażem XL:
- "Wybudowaliśmy dom Jaśkołek 5 XL za dobre pieniądze. Koszt budowy był rozsądny, a dom jest bardzo solidny i dobrze wykonany. Jesteśmy zadowoleni, że zdecydowaliśmy się na ten projekt." - Marek
- "To najlepszy dom z poddaszem, jaki widzieliśmy. Jest wspaniale zaprojektowany i wykończony. Mamy tu wszystko, czego potrzebujemy do wygodnego życia." - Zosia i Adam
- "Jeśli szukacie wspaniałego domu dla rodziny, to zdecydowanie polecamy projekt Jaśkołka 5 XL. To dom, który zachwyci Was swoim wyglądem i funkcjonalnością. Łatwy w wykonaniu, naprawdę zbudowalismy go w znośnym budżecie, poddasze w Projekcie Jaksółka 5 jest super przetronne i funkcjonalne. Polecamy " Magda & Maciek
"Dobre projekty powstają w doświadczonych pracowniach. Projektujemy domy już od 15 lat"















