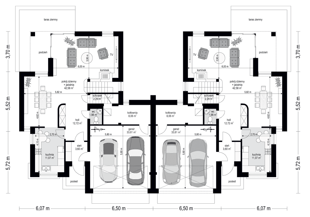
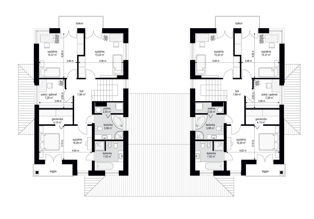
Projekt domu Kasjopea 2 został zaprojektowany jako budynek bliźniaczy. Dwie piętrowe połówki bliźniaka zostały połączone dwustanowiskowymi garażami przekrytymi dwuspadowym dachem. Dzięki temu obie części budynku są od siebie wizualnie oddzielone - nie stanowią jednej, zlewającej się bryły. Prosta forma prostopadłościanu została urozmaicona wystającymi wykuszami i daszkami, a także podcieniami, balkonami i loggią. Projekt domu Kasjopea 2 spodoba się Inwestorom lubiącym nowoczesną architekturę, lecz nieprzesadzoną - z odrobiną konserwatyzmu. We wnętrzu domu Kasjopea 2, na parterze zaprojektowano: część dzienną, składającą się z salonu z aneksem jadalnym, holu, częściowo otwartej kuchni, oraz pomieszczenia gospodarczego i garażu. Na piętrze zaplanowano z kolei apartament rodziców - z łazienką, garderobą i balkonem, oraz dwie sypialnie dzieci - z łazienką. Dodatkowo zmieścił się jeszcze jeden pokój, który może być wykorzystany jako gabinet do pracy, ewentualnie sypialnia gościnna lub duża garderoba. Zapraszamy do zapoznania się z pełną ofertą pracowni MG Projekt tej serii: projekt domu Kasjopea, projekt domu Kasjopea 3, projekt domu Kasjopea 4, projekt domu Kasjopea 5, projekt domu Kasjopea 6, projekt domu Kasjopea 7, projekt domu Kasjopea 7B, projekt domu Kasjopea 8.
UWAGA! Koszty realizacji oraz dane techniczne dotyczą połowy bliźniaka.
Materiały:
- Fundamenty betonowe wylewane
- Ściany zewnętrzne dwuwarstwowe porotherm 25 + 20 styropian (lub wełna mineralna)
- Strop Teriva
- Elewacje tynk cienkowarstwowy
- Pokrycie dachu blachodachówka lub dachówka















