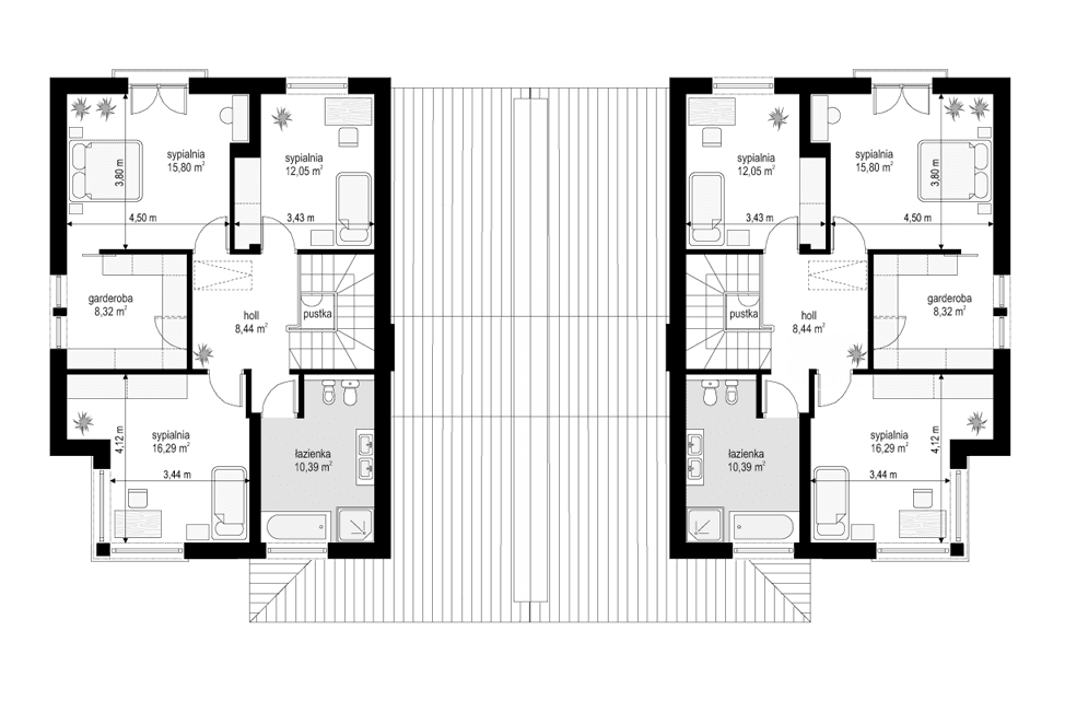
Projekt domu Ametyst 2 to budynek w zabudowie bliźniaczej dla dwóch 4- 6-osobowych rodzin. Piętrowy dom przykryty wielospadowym dachem. Zwarta, prosta w budowie bryła, złożona z dwóch piętrowych połówek i parterowego łącznika garaży, została urozmaicona fragmentami ścian z boniowaniem, oraz dwoma podcieniami. Subtelne elementy dekoracyjne dodają Ametystowi 2 dyskretnej elegancji. Wnętrze zaprojektowano z myślą o klarowności podziałów - bez zbędnych przestrzeni. Wszystkie pokoje mają funkcjonalny kształt. Na parterze zaplanowano salon połączony z jadalnią i holem, z częściowo otwartą kuchnią. W projekcie umieszczono też dodatkowy pokój - gabinet lub sypialnię gościnną. Część gospodarcza domu przewiduje dwustanowiskowy garaż i pomieszczenie gospodarcze - można również zrezygnować z drugiego garażu i zaprojektować w jego miejsce duże pomieszczenie gospodarcze. Na piętrze umieszczono trzy sypialnie z garderobami i szafami wbudowanymi, oraz dużą łazienkę. Istnieje możliwość wygospodarowania dodatkowego czwartego pokoju na piętrze - likwidując garderobę. Pracownia posiada wersję odbicia lustrzanego projektu Ametyst 2. Zapraszamy do zapoznania się z pełną ofertą pracowni MG Projekt: projekt domu Ametyst.
UWAGA! Koszty realizacji oraz dane techniczne dotyczą połowy bliźniaka.
Materiały:
- Fundamenty betonowe ławy i ściany fundamentowe z bloczków betonowych
- Ściany zewnętrzne ściany murowane - pustaki porotherm 25 + styropian + tynk cienkowarstwowy
- Strop Teriva
- Elewacje tynk cienkowarstwowy na styropianie
- Pokrycie dachu dachówka













