Twój koszyk

visualizations 1
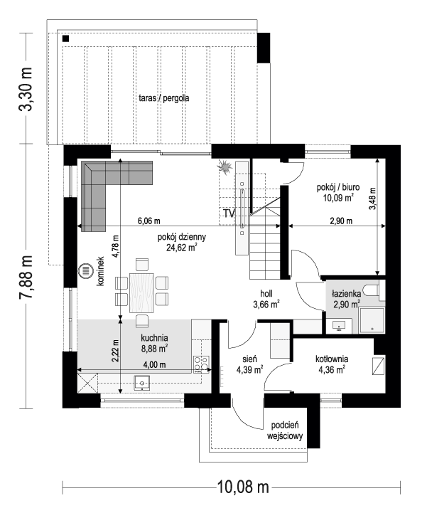
plans 1

Wybrany projekt

Przyjemny 5

Projekt domu jednorodzinnego

up/down
Cena brutto za produkt
5450 zł
4360 zł
Najniższa cena z 30 dni przed obniżką: 3560 zł
Cena brutto za produkt
5450 zł
4360 zł
Najniższa cena z 30 dni przed obniżką: 3560 zł

Bezpłatny pakiet korzyści

Dziennik Budowy
Dziennik Budowy

Dziennik budowy to dokument urzędowy przeznaczony do rejestrowania, w formie wpisów, przebiegu robót budowlanych, zmian na budowie i innych zdarzeń. Kierownik Budowy prowadzi w Dzienniku Budowy opis etapów i prac budowlanych.

Odautorska zgoda na zmiany w projekcie
Odautorska zgoda na zmiany w projekcie

Pisemne upoważnienie od autora do przeprowadzania zmian w projekcie gotowym. Zobacz zakres standardowych zmian: Zgoda na zmiany

Dodatkowa zgoda na zmiany
Dodatkowa zgoda na zmiany

zmianę sposobu ogrzewania budynku, zmianę usytuowania kominów, likwidację/doprojektowanie balkonów, podcieni, lukarn, zmianę usytuowania i kształtu tarasu, podniesienie ścianki kolankowej, zmianę wysokości budynku. w/w zmiany pojawiają się bardzo często już na etapie wykonywania adaptacji, czy też realizacji budowy. Zatem dobrze jest zapobiegawczo uzyskać pozwolenie na takie zmiany już przy zamawianiu projektu. Zaoszczędzi to nasz czas i energię na załatwianie zgody na zmiany w późniejszym terminie.

Adaptacja do działki w cenie 3500 zł
Adaptacja do działki w cenie 3500 zł

Kupując projekt z naszej oferty, masz pewność projektu z adaptacją w konkurencyjnej cenie.

Cena dotyczy projektów jednorodzinnych i mieszkalnych, letniskowych. Cena adaptacji budynków usługowych, agroturystycznych jest ustalana indywidualnie i zależna od lokalizacji i możliwości obsługi zdalnej.

Zapoznaj się z ofertą nie do odrzucenia!

Charakterystyka energetyczna
Charakterystyka energetyczna

Charakterystyka energetyczna to określenie w projekcie wskaźnika nieodnawialnej energii pierwotnej EP [kWh/m2rok]. W niektórych przypadkach do charakterystyki energetycznej dodawana jest analiza odnawialnych źródeł energii. O szczegółach poinformuje doradca.

10% Rabatu na pełen asortyment PSB MERKURY!
10% Rabatu na pełen asortyment PSB MERKURY!

Otrzymujesz 10% rabatu na wszelkie produkty dostępne w sklepach PSB Merkury Mrówka. Kontakt do bezpośredniego dedykowanego przedstawiciela, pomoc i doradztwo w wyborze i zakupach. Profesjonalna obsługa i nieocenione doświadczenie tylko z naszym PAKIETEM KORZYŚCI.

Sprawdź szczegóły oferty

10 % Rabatu na materiały budowlane ciężkie
10 % Rabatu na materiały budowlane ciężkie

Otrzymujesz 10% na stropy, systemy kominowe, nadproża oraz materiały ścienne. Firma Terra DMB współpracuje z ogólnopolskimi znanymi na rynku Polskim producentami doskonałych wyrobów w zakresie systemów kominowych, jak i w zakresie stropów Teriva.

Oferujemy dostarczenie konkretnych materiałów na terenie całego kraju.

Sprawdź szczegóły oferty

20% Rabatu na aktualny kosztorys inwestorski
20% Rabatu na aktualny kosztorys inwestorski

Zapewnij sobie wykonanie indywidulanego kosztorysu inwestorskiego na konkretny region oraz planowane materiały budowlane aż 20% taniej. Nasi eksperci dodatkowo pomogą w weryfikacji ofert firm wykonawczych i kontroli kosztów inwestycji.

Co zawiera kosztorys inwestorski?

  • stan surowy
  • stan deweloperski (instalacje wg wskaźników BCO)
  • stan „pod klucz” termin: do 14 dni (wersja elektroniczna)

  • 890 zł netto dla domu jednorodzinnego o powierzchni użytkowej od 100 do 200 m2 (standardowa cena 1 500 zł netto)

  • 1099 zł netto dla domu jednorodzinnego o powierzchni użytkowej od 201 do 300 m2 (standardowa cena 1 800 zł netto)
  • 450 zł netto dla garażu/ budynku gospodarczego.

Sprawdź szczegóły oferty

Materiały budowlane, wykończeniowe PSB oraz projekty wnętrz - w jednym miejscu!
Materiały budowlane, wykończeniowe PSB oraz projekty wnętrz - w jednym miejscu!

Zamawiając projekt w naszej firmie, zyskujesz możliwość zlecenia wykonania projektu: kuchni, łazienki, pokoi i całego domu w bardzo niskiej cenie - do 2 000 zł! Przy zamówieniu materiałów wykończeniowych w PSB Mrówka - zwracamy Ci do 1000 zł za projekt.

Przy zakupie projektu u nas, zyskujesz dedykowanego projektanta, który wykona z Tobą Twój projekt. Zamów materiały w naszym oddziale PSB Mrówka, a zwrócimy Ci 1000 zł za projekt! O szczegółach opowie nasz doradca i skontaktuje Cię z dedykowanym konsultantem.

W ramach koncepcyjnego projektu architekt wykonuje koncepcje aranżacji całego domu lub pojedynczego pomieszczenia. Otrzymujesz: wizualizację 3D projektowanych pomieszczeń wraz z wstępną propozycją materiałów, kolorów, mebli i sprzętu.

Sprawdź szczegóły oferty

Projekt i realizacja kuchni z indywidualnym rabatem!
Projekt i realizacja kuchni z indywidualnym rabatem!

Dzięki naszym partnerom PSB Mrówka (Prudnik)
- 10% rabatu na materiały budowlane
- 10% rabatu na materiały wykończeniowe
- 5% rabatu na asortyment dodatkowy
- wykonanie projektu kuchni, łazienki, pokoju - w rekordowo niskich cenach! do 2000 zł
- kup materiały w PSB Mrówka (Prudnik) a otrzymasz zwrot do 1000 zł za wykonany projekt
- dedykowany doradca
- transport na terenie całej Polski
- możliwość obsługi zdalnej

Sprawdź szczegóły oferty

Bezpłatna analiza Kredytu Budowa Domu
Bezpłatna analiza Kredytu Budowa Domu

Bezpieczna decyzja:
Kredyt hipoteczny pod budowę domu, zakup działki.

Nasz ekspert może sprawdzić Twoją zdolność kredytową - czy nasz doradca może się z Państwem skontaktować?

Naszym Klientom gwarantujemy bezpłatnie sprawdzenie zdolności kredytowej

- pomoc Eksperta podczas całego procesu kredytowego
- analizę ofert z wielu banków
- rekomendację najkorzystniejszego kredytu
- atrakcyjne promocje
- pomoc w formalnościach i kompletowaniu dokumentów

Wypełnij formularz na stronie oferty: WYCENA KREDYTU DO BUDOWY DOMU
Zaufaj wiedzy i doświadczeniu!
Żadnych prowizji i ukrytych kosztów!

Nasz doradca to osoba wydająca decyzje kredytowe od lat!

PROJEKT ALTANY OGRODOWEJ
PROJEKT ALTANY OGRODOWEJ

Cena regularna: 650 zł / Cena promocyjna: 0,00 zł

Gotowy projekt altany ogrodowej - do wyboru jeden z dwóch dostępnych na naszej stronie. Bardzo przydatny dodatek do Państwa ogrodu. Wystarczy wybrać typ projektu: A1, A2, ze strony pakietu i dołączyć informację do zamówienia. Projekt pomoże wybrać Ci doradca.

Promocja ograniczona czasowo! Promocją objęte są tylko projekty gotowe (ze zgodą na zmiany), w których nie są dokonywane żadne przeróbki w naszej pracowni. Promocje [PROJEKT ALTANY OGRODOWEJ, PROJEKT OGRODZENIA, PAKIET SZAMBO SZCZELNE, PAKIET ENERGOOSZCZĘDNY] nie łączą się!

PROJEKT OGRODZENIA
PROJEKT OGRODZENIA

Cena regularna: 550 zł / Cena promocyjna: 0,00 zł

Gotowy projekt ogrodzenia działki . Do wyboru jeden z czterech dostępnych w naszej ofercie projektów ogrodzeń: O1, O2, O3, O4. Wystarczy wybrać jeden z projektów na stronie pakietu i dołączyć informację do zamówienia. Projekt pomoże wybrać Ci doradca.

Promocja ograniczona czasowo! Promocją objęte są tylko projekty gotowe (ze zgodą na zmiany), w których nie są dokonywane żadne przeróbki w naszej pracowni. Promocje [PROJEKT ALTANY OGRODOWEJ, PROJEKT OGRODZENIA, PAKIET SZAMBO SZCZELNE, PAKIET ENERGOOSZCZĘDNY] nie łączą się!

PAKIET SZAMBO SZCZELNE
PAKIET SZAMBO SZCZELNE

Cena regularna: 399 zł / Cena promocyjna: 0,00 zł

Gotowy projekt żelbetowego szamba szczelnego. Dla wszystkich osób budujących domy jednorodzinne na terenie bez dostępu do sieci kanalizacji sanitarnej.

Promocja ograniczona czasowo! Promocją objęte są tylko projekty gotowe (ze zgodą na zmiany), w których nie są dokonywane żadne przeróbki w naszej pracowni. Promocje [PROJEKT ALTANY OGRODOWEJ, PROJEKT OGRODZENIA, PAKIET SZAMBO SZCZELNE, PAKIET ENERGOOSZCZĘDNY] nie łączą się!

PAKIET ENERGOOSZCZĘDNY
PAKIET ENERGOOSZCZĘDNY

Cena regularna: 150 zł / Cena promocyjna: 0,00 zł

Poradnik pokazujący sposoby i rozwiązania podnoszące energooszczędność budynku, likwiduje mostki termiczne i pozwalające zaoszczędzić na kosztach eksploatacji domu

Promocja ograniczona czasowo! Promocją objęte są tylko projekty gotowe (ze zgodą na zmiany), w których nie są dokonywane żadne przeróbki w naszej pracowni. Promocje [PROJEKT ALTANY OGRODOWEJ, PROJEKT OGRODZENIA, PAKIET SZAMBO SZCZELNE, PAKIET ENERGOOSZCZĘDNY] nie łączą się!

Dobierz dodatki do projektu

 
1550 zł
 
1950 zł
 
1970 zł
 
600 zł
 
700 zł
400 zł
 
1000 zł
 
420 zł
 
85 zł
 
600 zł
550 zł
 
650 zł
 
600 zł
 
620 zł
 
600 zł
 
600 zł
 
700 zł
 
750 zł
700 zł
 
750 zł
700 zł
 
650 zł
600 zł

Zakupu dodatków można dokonać po złożeniu zamówienia, jeżeli nie masz teraz pewności, które wybrać, pomiń ten krok.

Dane do wysyłki

Twoje dane *
Adres do wysyłki *
Dane do faktury

Wypełnij, jeżeli chcesz otrzymać fakturę, w przeciwnym wypadku zostaw puste.

Dodatkowe informacje

Wypełnij, jeżeli chcesz przekazać sprzedawcy dodatkowe informacje.

Dostawa i płatność

Pozostałe

Całkowity koszt zamówienia
0.00
;