Projekt domu Erna 4 drewniana
Specyfikacja i charakterstyka projektu
Wizualizacja projektu
Uwaga! Od 1 lutego wchodzą nowe ceny.
To ostatni moment na zakup projektu taniej!
Parametry podstawowe
Parametry techniczne projektu
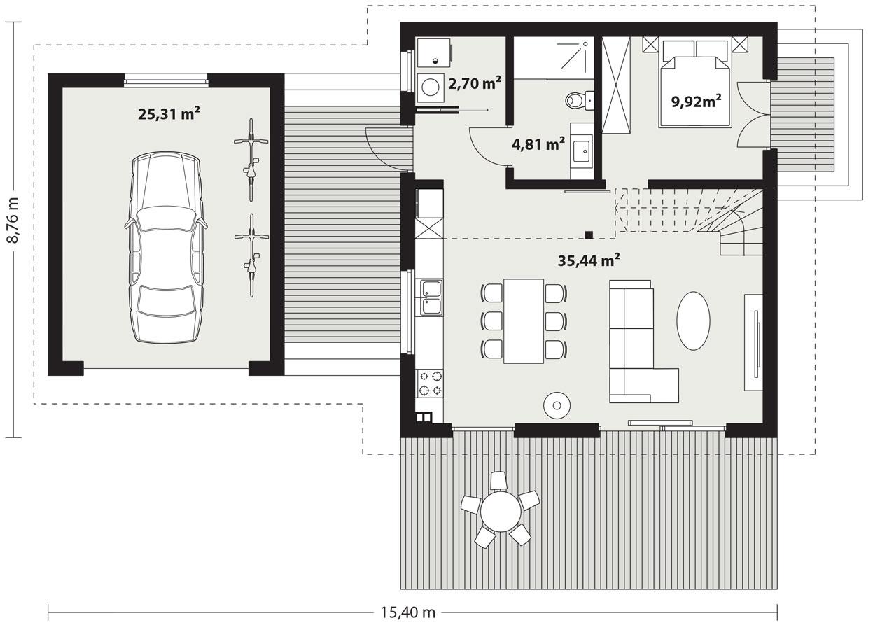
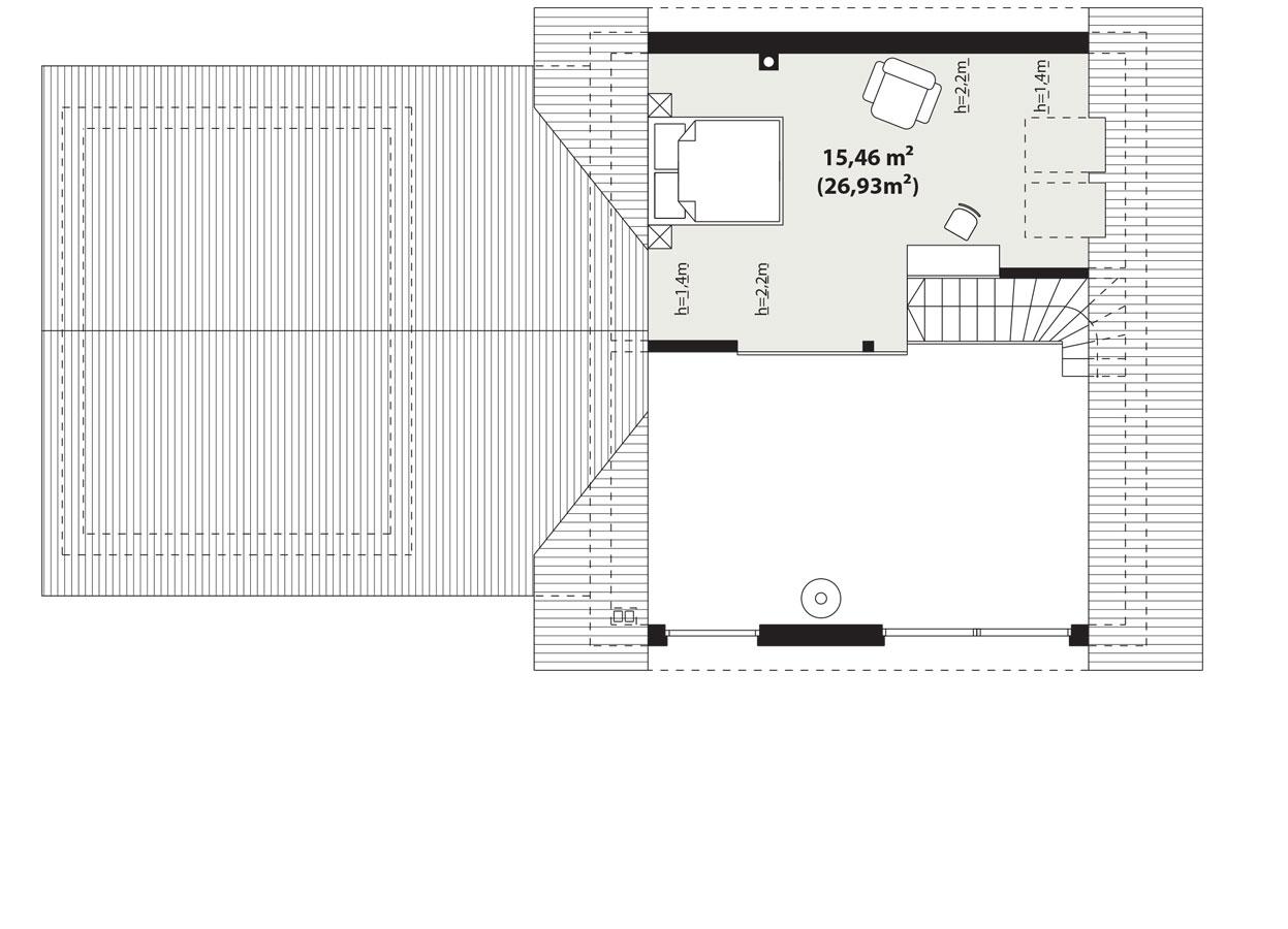
Rzuty projektu - kondygnacje i działka



📂 Uzyskaj rysunki szczegółowe do projektu
Szczegółowy opis projektu
Powiązane kategorie
Informacje szczegółowe
➡ Najczęściej wprowadzane zmiany, warianty i adaptację projektu
💰 Szacunkowy koszt realizacji budowy projektu
🚀 Wycena budowy projektu w technologii szkieletowej/modułowej
🏗️ Technologia budowy Erna 4
Technologia
Dach: dachówka lub blachodachówka
Elewacje: szalówka
Strop: belki drewniane
Ściany wewnętrzne: szkielet drewniany
Ściany zewnętrzne: szkielet drewniany
Zalety zakupu projektu na wybieramprojekt.pl
Nasze biuro posiada szeroki zakres usług związanych z adaptacją gotowych projektów do warunków konkretnej działki, doradztwem w zakresie kosztorysów i technologii oraz budową domu. Do zakupu każdego projektu dodajemy również obszerny pakiet korzyści.
Pakiet korzyści w zestawie przy zakupie projektu
Uzyskaj informacje o korzystnych kredytach na budowę domu
Skorzystaj z bezpłatnej pomocy eksperta finansowego
💼 Zawartość gotowego projektu architektoniczno-budowlanego
Każdy PROJEKT GOTOWY to wysokiej jakości dokumentacja architektoniczno-techniczna sporządzona wedle wytycznych Prawa Budowlanego, pozwalajaca złożyć dokumentację w urzędzie do zgłoszenia budowy lub do pozwolenia na budowę. Wszystkie nasze projekty gotowe i projekty gotowe autorów, z którymi współpracujemy są zweryfikowane i posiadają zaświadczenie o zgodności projektu z PB. Dostępność i aktualizacje każdego projektu są indywidualnie potwierdzane.
Każdy gotowy projekt jest zgodny z Prawem Budowlanym i zawiera:
- Projekt opisowo-architektoniczny
- Projekt techniczny
- Zgodę na modyfikację projektu i adaptację
- Kopię uprawnień architektów i branżystów
- Projekty domów posiadają charakterystykę energetyczną (brak w projektach garaży i gospodarczych)
Szczegółową zawartość projektu możesz sprawdzić na stronie:
Zawartość projektu gotowego
Każdy projekt gotowy domu jednorodzinnego możemy zanalizować pod kątem zgodności z działką i omówić zmiany planowane w projekcie. Z nami zyskujesz kompleksowo bezpieczeństwo zakupu projektu!
✍🏻 Standardowa zgoda na zmiany do projektu
Co możesz modyfikować?
Standardowa zgoda to szeroki zakres możliwości. Pamiętaj od nas UZYSKASZ INDYWIDUALNĄ DODTAKOWĄ ZGODĘ BEZPŁATNIE na Twoje życzenie.
STANDARDOWO DOŁĄCZANA ZGODY NA ZMIANY obejmuje:
- zmianę funkcji użytkowania pomieszczeń,
- zmiany technologiczne i materiałowe - rodzaj stropu, materiały ścienne, izolacyjne i wykończeniowe, pokrycie dachowe,
- dostosowanie posadowienia budynku do warunków geotechnicznych,
- wykonanie podpiwniczenia budynku,
- zmiany usytuowania ścian działowych,
- zmiana wielkości, ilości i lokalizacji otworów drzwiowych i okiennych,
- zmiana nachylenia kąta połaci dachowej do 5 stopni,
- zmiany w wymiarach zewnętrznych budynku w zakresie 5%,
- zmiana materiałów instalacyjnych i przebiegu instalacji wewnętrznych.
- Warto uzyskać dodatkowa zgodę na zmiany* :
- zmianę sposobu ogrzewania budynku,
- zmianę usytuowania kominów,
- likwidację/doprojektowanie balkonów, podcieni, lukarn,
- zmianę usytuowania i kształtu tarasu,
- podniesienie ścianki kolankowej,
- zmianę wysokości budynku.
w/w zmiany pojawiają się bardzo często już na etapie wykonywania adaptacji, czy też realizacji budowy.
Potrzebujesz więcej informacji technicznych dotyczących projektu, by zamówić projekt domu, zapraszamy. Informację dotyczące warunków zakupu i zwrotów dostępne są na stronie Regulaminu, o szczegółach dotyczących czasu realizacji projektu, warunków zakupu i warunków wymian lub zwrotów poinformuje doradca po sprawdzeniu konkretnych warunków zakładanych przez konkretnego autora projektu.
Warunki zwrotów
Warunki zwrotu: 14 dni i wymiany do 60 dni: Przed złożeniem zamówienia na projekt powinieneś się upewnić, czy pasuje on na twoją działkę i czy spełnia lokalne warunki administracyjne. Jeśli nie jesteś tego pewien, skontaktuj się z pracownią. Ponieważ wybór i zakup projektu jest poważną decyzją, uznajemy prawo do jej zmiany. Mając na uwadze komfort i bezpieczeństwo naszych klientów, umożliwiamy zwrot dokumentacji w ciągu 14 dni lub jej wymiany w ciągu 60 dni od momentu odbioru przesyłki. Pod warunkiem, że dokumentacja nie jest naruszona, kopiowana i zniszczona. Główne warunki zwrotu i wymiany: W wypadku zwrotu w ciągu 14 dni, a przy wymianie w okresie 60 dni od momentu odbioru przesyłki należy przesłać drogą mailową informację o odstąpieniu od umowy lub wymianie projektu. Cztery egzemplarze zwracanego lub wymienianego projektu muszą być w stanie nienoszącym śladów rozszywania, kopiowania, adaptowania itp. Kosztorysu inwestorskiego, zapisanego w formie elektronicznej, dostarczonego pocztą mailową nie zwraca się
Informacje ogólne dotyczące działania sklepu internetowego zawarte są na stronie Regulaminu





