Willa Siedziba 3 - elegancka i funkcjonalna rezydencja dla wymagających
Willa Siedziba 3 to projekt piętrowego domu jednorodzinnego, który zachwyca swoją elegancją i reprezentacyjnością. Dom jest idealny dla osób, które chcą mieszkać w pięknym i komfortowym domu, który będzie przyciągał uwagę wszystkich gości. Dom ten jest zaprojektowany w stylu klasycznym, z wyraźnymi nawiązaniami do architektury rezydencjonalnej z przełomu XIX i XX wieku. Jednocześnie, Willa Siedziba 3 jest wyposażona w wszystkie niezbędne udogodnienia, które zapewnią komfortowe życie rodzinie.
Dom Willa Siedziba 3 jest bardzo funkcjonalny i zapewnia komfortowe warunki do życia dla całej rodziny. Dom posiada wszystkie niezbędne pomieszczenia, takie jak salon, jadalnia, kuchnia, sypialnie, łazienki i garaż.
Estetyka i funkcjonalność domu Willa Siedziba 3:
Willa Siedziba 3 to dom, który zachwyca swoją elegancją i stylowym wyglądem. Dom jest wykonany z wysokiej jakości materiałów, dzięki czemu będzie służył przez wiele lat.
Bryła domu Willa Siedziba 3 jest rozczłonkowana na kilka mniejszych fragmentów, co nadaje jej eleganckiego i stylowego wyglądu. Front domu wyróżnia się pięknie zaakcentowanym wejściem, z szerokimi drzwiami z naświetlami. Nad wejściem znajduje się balkon z balustradą, który stanowi idealne miejsce do wypoczynku i relaksu.
Elewacja tylna domu również jest bardzo ciekawa. Znajduje się tutaj dwukondygnacyjne okno z salonu, które otwiera widok na ogród. Okno to jest ozdobione piękną balustradą. Na piętrze znajduje się balkon z sypialnią państwa domu.
Wnętrze domu Willa Siedziba 3:
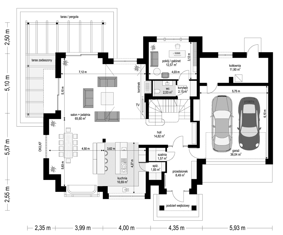
Wnętrze domu Willa Siedziba 3 zostało podzielone funkcjonalnie na dwie strefy: dzienną i nocną. Strefa dzienna znajduje się na parterze i składa się z salonu, jadalni, kuchni i gabinetu. Salon jest przestronny i jasny, dzięki dużym oknom. Z salonu można wyjść na taras, który jest idealnym miejscem do relaksu i spędzania czasu z rodziną i przyjaciółmi. Jadalnia jest połączona z kuchnią, dzięki czemu domownicy mogą bez przeszkód komunikować się ze sobą podczas przygotowywania posiłków. Gabinet to idealne miejsce do pracy i odpoczynku.
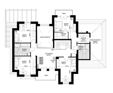
Strefa nocna znajduje się na piętrze i składa się z czterech sypialni, dwóch łazienek i garderoby. Sypialnia państwa domu jest przestronna i posiada własną łazienkę i garderobę. Sypialnie dzieci są również przestronne i posiadają własne łazienki.
Koszty budowy i inwestycja:
Budowa domu Willa Siedziba 3 to inwestycja, która wymaga pewnych nakładów finansowych. Jednakże, dom ten jest wart swojej ceny, ponieważ zapewnia komfortowe warunki do życia i zachwyca swoją elegancją.
Willa Siedziba 3 jest zaprojektowana z wykorzystaniem energooszczędnych technologii. Dom ten jest ocieplony wełną mineralną, posiada dobre parametry izolacji termicznej i akustycznej. Dom jest wyposażony w nowoczesne instalacje, takie jak:
- ogrzewanie gazowe
- wentylacja mechaniczna
- klimatyzacja
Koszt budowy domu Willa Siedziba 3 zależy od wielu czynników, takich jak: wielkość domu,
materiały budowlane, lokalizacja.
Ogólnie rzecz biorąc, koszt budowy domu Willa Siedziba 3 jest wyższy niż koszt budowy standardowego domu jednorodzinnego. Jednak, biorąc pod uwagę wysoką jakość wykonania i funkcjonalność tego domu, można stwierdzić, że jest on wart swojej ceny.
Willa Siedziba 3 to elegancka i funkcjonalna rezydencja, która doskonale spełni oczekiwania osób poszukujących domu, który będzie zarówno piękny, jak i komfortowy. Dom ten jest idealny dla rodzin, które cenią sobie wygodę i styl.
Główne cechy projektu Willa Siedziba 3:
- willa
- rezydencja
- projekt piętrowy z dachem wielospadowym
- piętrowy duży dom
- projekt z dachem wielospadowym
- duży projekt domu
Podsumowanie
Willa Siedziba 3 to elegancka i funkcjonalna rezydencja, która doskonale spełni oczekiwania osób poszukujących domu, który będzie zarówno piękny, jak i komfortowy. Dom ten jest idealny dla rodzin, które cenią sobie wygodę i styl.


















