Bocian z garażem dwustanowiskowym - popularny projekt domu jednorodzinnego z poddaszem
Dom Bocian z garażem dwustanowiskowym to popularny projekt domu jednorodzinnego z poddaszem, który cieszy się dużym zainteresowaniem wśród osób poszukujących funkcjonalnego i wygodnego miejsca do życia dla rodziny. Dom wyróżnia się nowoczesną i elegancką bryłą, a jednocześnie jest prosty w budowie i niedrogi.
Bryła i wygląd zewnętrzny
Dom Bocian z garażem dwustanowiskowym to zwarta, prosta bryła z dwuspadowym dachem. Bryła budynku jest symetryczna, co nadaje jej elegancki i nowoczesny wygląd. Elewacje domu wykończono w klasycznych materiałach, takich jak tynki, drewno i klinkier.
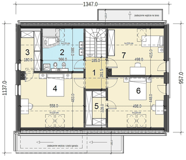
Rozkład pomieszczeń
Dom Bocian z garażem dwustanowiskowym to dom z poddaszem. Na parterze znajduje się strefa dzienna, składająca się z salonu z jadalnią i kuchni. Na poddaszu znajduje się strefa nocna, składająca się z trzech sypialni, łazienki i garderoby.
Funkcjonalność
Dom Bocian z garażem dwustanowiskowym to dom bardzo funkcjonalny. Przestronna strefa dzienna na parterze zapewnia komfortowe warunki do wspólnego spędzania czasu. Na poddaszu znajdują się trzy przestronne sypialnie, w tym sypialnia rodziców z osobną łazienką i garderobą. Garaż dwustanowiskowy zapewnia wygodne miejsce do parkowania samochodu.
Zalety:
- Nowoczesny i elegancki wygląd
- Prosty i funkcjonalny rozkład pomieszczeń
- Wysoka funkcjonalność
- Nowoczesna konstrukcja
- Wysoka jakość materiałów
Opinie o domu:
"Dom Bocian z garażem dwustanowiskowym to idealny wybór dla rodziny. Dom jest bardzo funkcjonalny i wygodny, a jednocześnie ma nowoczesny i elegancki wygląd. Jesteśmy bardzo zadowoleni z naszego wyboru." - Rodzinni
"Dom jest po prostu extra. Dom jest prosty w budowie i niedrogi, a jednocześnie zapewnia komfortowe warunki do życia dla naszej rodziny. Jesteśmy bardzo zadowoleni z efektu końcowego." - Kinga i Rafał
"Dobre projekty powstają w doświadczonych pracowniach. Projektujemy domy już od 15 lat"

















