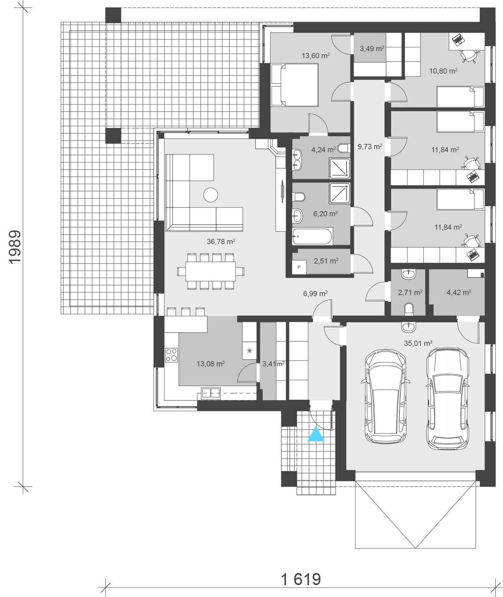
uA46v1 to nowoczesny dom parterowy z dachem kopertowym, wyposażony w garaż dwustanowiskowy. Prosta bryła została urozmaicona funkcjonalnymi podcieniami w strefie wejściowej, jak również tarasowej od strony ogrodu. Zostały one wyróżnione nie tylko wysunięciem okapów, ale również poprzez zastosowanie odpowiednich materiałów okładzinowych. Wysunięcie linii podcienia nadało swoistej lekkości bryle budynku, zapewniło ochronę przeciwsłoneczną i przeciwdeszczową tarasu użytkowego, stanowić może podporę dla roślin płożących co dodatkowo wzmocni efekt lekkości konstrukcji oraz wprowadzi oryginalny akcent dekoracyjny. Centralnie zaprojektowane wejście rozgranicza strefy funkcjonalne na dzienną i nocną. Otwierając kuchnię i aneks jadalny na salon uzyskano jedną wielką przestrzeń o przenikających się funkcjach użytkowych. Naprzeciwko jadalni ulokowano toaletę dla gości. Główną łazienkę osadzono w centrum założenia, jej zadaniem będzie obsługa trzech pokoi. Sypialnię natomiast wyposażono w prywatną łazienkę i umiejscowiono w najbardziej intymnej części obiektu. Projekt uA46v1 to rozwiązanie dla ludzi ceniących ekonomiczne rozwiązania i szerzej pojętą prostotę formy.
Projekt należy do rodziny projektów uA46 i występuje w wielu wariantach: uA46, uA46v2, uA46v3, uA46v4, uA46v5, uA46v6, uA46v7 oraz uA46v8.
Technologia:
Fundamenty: bloczki betonowe, lany beton
Ściany: gazobeton, silikaty, ceramika
Strop: żelbet
Dach: więźba, dachówka, blacha
Ogrzewanie: gaz, kaloryfery
Wentylacja: grawitacyjna







