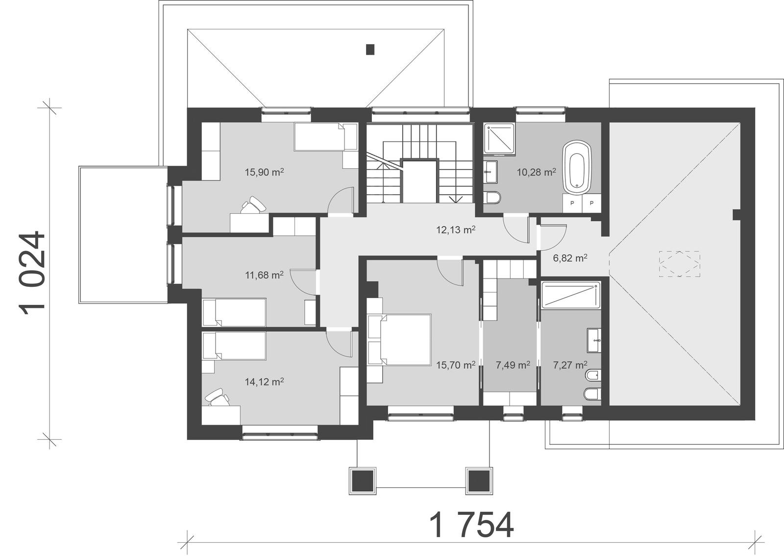
uA50 to okazały budynek jednorodzinny dla dużej rodziny, o łącznej powierzchni użytkowej 204 m2. Inspiracją do powstania tego projektu jest architektura jednorodzinna z za oceanu. Na elewacji zastosowano boniowanie narożniki, które nadają temu projektowy eleganckiego charakteru. Od frontu budynku znajduje się reprezentacyjne, zadaszone wejście, a nad nim okazały balkon. Ten projekt domu składa się on z dwóch kondygnacji przykrytych dachem wielospadowym. Strefa wejściowa to przestronny wiatrołap z przylegającą do niego garderobą, która stanowi zarazem łącznik między częścią gospodarczą i dzienną. W reprezentacyjnym hallu wejściowym, naprzeciwko wejścia zlokalizowana jest klatka schodowa. Przylegają do niego również gabinet oraz ogólnodostępna łazienka. Lewą stronę parteru zajmuje jednoprzestrzenne, dobrze doświetlone pomieszczenie w którym znajduje się duża kuchnia, jadalnia z wyjściem na częściowo zadaszony taras oraz salon. Strefa nocna na piętrze to kompleks 4 pokoi sypialnych, z czego jedna to sypialnia typu master, wyposażona we własną garderobę, łazienkę oraz z dostępem do balkonu. Na tej kondygnacji znajduje się również ogólnodostępna łazienka oraz przestronne pomieszczenie gospodarcze zlokalizowane nad dwustanowiskowym garażem.
Technologia:
Fundamenty: bloczek betonowy, lany beton
Ściany: gazobeton, silikaty, ceramika
Strop: żelbet
Dach: więźba, blacha, dachówka
Ogrzewanie: gaz, podłogowe
Wentylacja: mechaniczna








