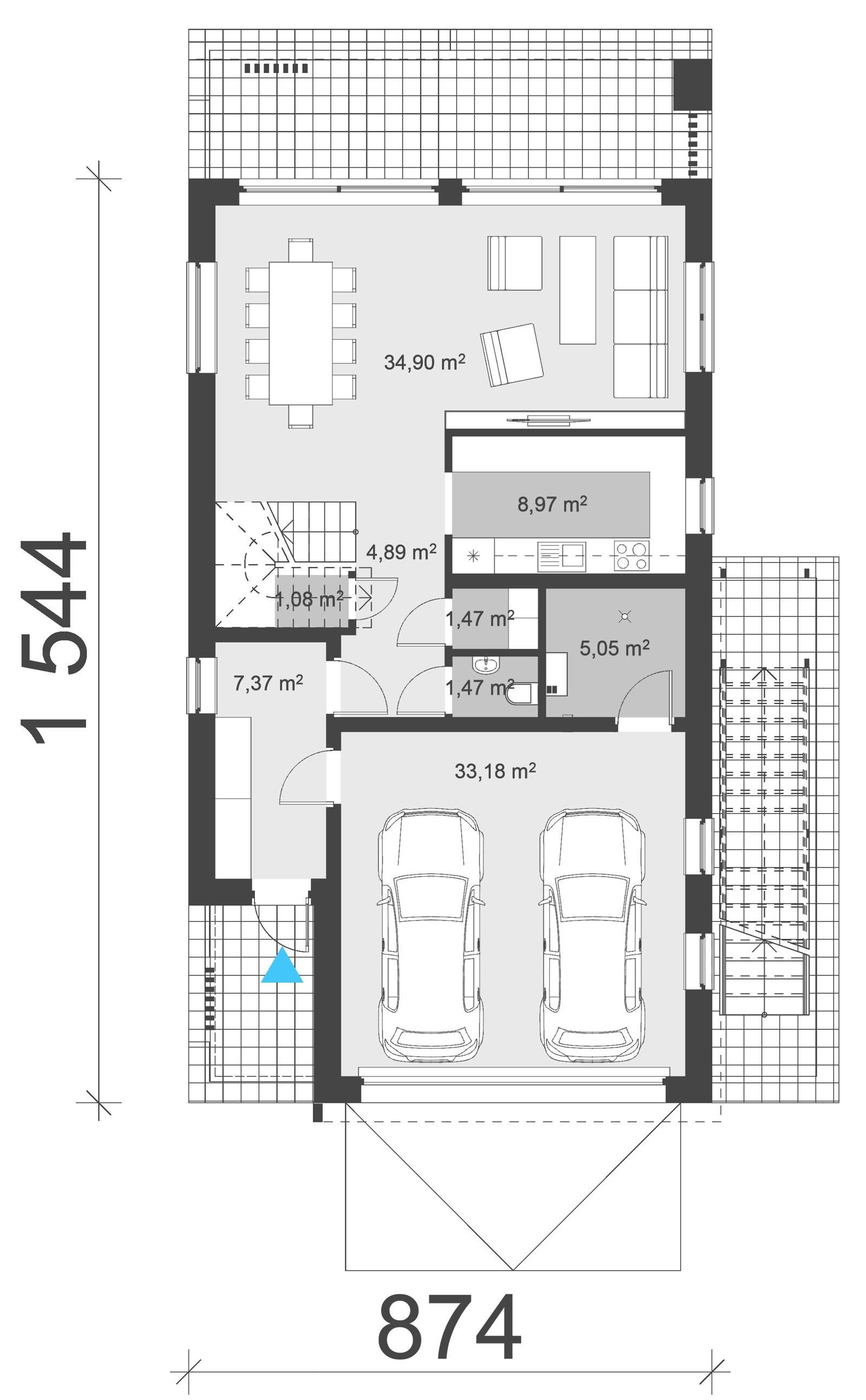
Projekt domu uA16v1 to nowoczesna miejska willa, która z powodzeniem odnajdzie się również na przedmieściach miasta. Nieskomplikowana architektura jest atrakcyjnie ubogacona materiałami elewacyjnymi, które można dowolnie komponować. Dobrze zestawione ze sobą materiały, detale i kolorystyka tworzą wrażenie elegancji i wygody w zwartej bryle. Warto zwrócić uwagę na dwuspadowy dach oraz na murowaną technologię. Program użytkowy domu jest bardzo wyraźny i podzielony na piętra. Na parterze znajduje się strefa gościnna z obszernym salonem z jadalnią oraz kuchnia wraz ze spiżarnią i małym WC. Strefa wejściowa to obszerny hall i garaż dwustanowiskowy z kotłownią. Gdy wejdziemy na piętro ukaże się nam pokaźny korytarz, który komunikuje ze sobą wszystkie pomieszczenia. Od strony schodów znajdują się dwa pokoje oraz duża łazienka. Po przeciwnej stronie znajdują się dwa pokoje, garderoba i pomieszczenie gospodarcze. Innowacyjnym rozwiązaniem jest umiejscowienie schodów na ścianie bocznej budynku. Wnętrze uA16v1 jest przestronne i jasne. Energooszczędny dom, dzięki zwartej bryle jest tani w realizacji i komfortowy do mieszkania w wygodnie zaprojektowanych, przestronnych pokojach.
Technologia:
Fundamenty: bloczki betonowe, lany beton
Ściany: ceramika, gazobeton, silikaty
Dach: tradycyjna więźba dachowa, blacha, blachodachówka
Strop: płyta żelbetowa
Ogrzewanie: gaz, kaloryfery
Wentylacja: mechaniczna




















