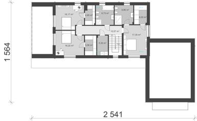
Projekt domu uA176v1 jest to projekt wyróżniający się na tle innych gotowych projektów domów dzięki swej nietuzinkowej bryle i nowoczesnemu charakterowi. Z pewnością jest to projekt charakterystyczny, oryginalny i zapadający z pamięć. Projekt powstał na planie dwóch prostokątów- jeden stanowi część mieszkalną a drugi garażową. Część garażowa zapewnia miejsce parkingowe na dwa auta oraz rowery i inne sprzęty. Wydzielone zostało tu pomieszczenie gospodarcze oraz garderoba będąca łącznikiem garażu z częścią mieszkalną. Dzięki dużej powierzchni garażu inwestor zyskuje dodatkowe, cenne miejsce do przechowywania. Nad garażem zastosowano dach płaski. Wejście do domu zostało cofnięte w stosunku do głównej osi budynku, dzięki czemu powstało praktyczne zadaszenie strefy wejściowej. Po przekroczeniu drzwi wejściowych znajdujemy się w wiatrołapie, który prowadzi do okazałej i komfortowej strefy dziennej, która będzie idealnym miejscem spotkań i relaksu dla domowników. W jej skład wchodzi reprezentacyjny salon z duża jadalnią, która pomieści stół na kilkanaście osób i z powodzeniem będzie doskonałym miejscem do organizacji niejednej uroczystości rodzinnej. Kolejnym atutem tego projektu jest duża, wygodna kuchnia z miejscem na wyspę kuchenną z praktyczną spiżarnią. Na parterze zaplanowano również dodatkowy pokój, który służyć może jako gabinet lub sypialnia dla gości oraz niewielką łazienkę. Na szczególną uwagę zasługuje okazały i reprezentacyjny taras z betonową pergolą, który jest powiększeniem salonu i będzie idealną strefą relaksu na świeżym powietrzu. Poddasze jest to prywatna strefa domowników z trzema sypialniami. Główna sypialnia master bedroom to strefa relaksu i odpoczynków dla rodziców. Wyposażona została ona w prywatną łazienkę z wanną i prysznicem oraz garderobę i wyjście na rozległy, zadaszony balkon. Dla dzieci zaplanowano dwie wygodne i ustawne sypialnie, każda z własną garderobą. Ponadto w strefie tej znajduje się ogólnodostępna łazienka oraz wygodna pralnia. Gotowy projekt domu uA176v1 z pewnością spełni oczekiwania najbardziej wymagających inwestorów, którzy cenią sobie nowoczesny styl, lubią duże przestrzenie i marzą do wygodnym miejscu do zamieszkania na miarę swoich potrzeb i oczekiwań. Projekt ten występuje również w wariancie uA176 z dachem dwuspadowym nad garażem.
Technologia:
Fundamenty: bloczek betonowy, lany beton
Ściany: gazobeton, silikaty, ceramika
Strop: żelbetowy
Dach: tradycyjna więźba dachowa, dachówka, blacha
Ogrzewanie: gaz, kaloryfery
Wentylacja: grawitacyjna




















