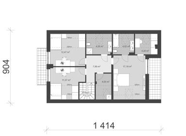
Gotowy projekt domu uA34v3 jest to tradycyjny projekt domu, który cechuje prosta bryła na planie prostokąta z nieskomplikowanym dwuspadowym dachem- idealnym pod instalację fotowoltaiczną. W bryle tego gotowego projektu domu jednorodzinnego zaplanowano garaż na dwa auta. Elewacja zewnętrzna utrzymana została w ciepłej palecie kolorystycznej. Do środka domu dostajemy się bocznym wejściem głównym, prowadzącym do wiatrołapu z miejscem na szafę wnękową. Wiatrołap pełni funkcję łącznika części mieszkalnej domu z częścią garażową, w której znajduje się także pomieszczenie gospodarze. Na parterze architekt zaplanował strefę dzienną, a w niej przestronny salon z nowoczesnym, narożnym kominkiem. Wygodna do gotowania kuchnia w kształcie litery U znajduje się w pobliży strefy jadalnianej. Z salonu zapewniono dostęp do strefy relaksu na tarasie. Dodatkowo na parterze znajduje się toaleta z prysznicem oraz gabinet. Na poddaszu użytkowym znajdują się dwie przytulne sypialnie oraz komfortowa master bedroom. Dopełnieniem program poddasza jest ogólnodostępna łazienka oraz praktyczne pomieszczenie pralni. Gotowy projekt uA34v3 to idealne rozwiązanie dla rodziny 2+2, która ceni sobie tradycyjny styl oraz poszukuje wygodnego z mieszkaniu i funkcjonalnego projekt domu o powierzchni użytkowej 125 m2.
Technologia:
Fundamenty: bloczek betonowy, lany beton
Ściany: gazobeton, silikaty, ceramika
Strop: żelbetowy
Dach: tradycyjna więźba, blachodachówka, dachówka ceramiczna
Ogrzewanie: gaz, kaloryfery
Wentylacja: grawitacyjna




















