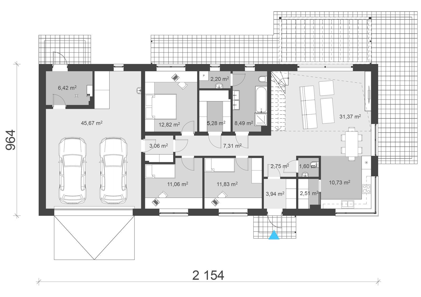
Projekt domu uA76v1 jest to propozycja nowoczesnej, geometrycznej bryły z klasycznym dwuspadowym dachem w typie nowoczesnej stodoły. Oszczędność formy widoczna przede wszystkim w kształcie bryły sprawia, iż projekt ten śmiało zaliczyć można do projektów tanich w budowie. Ten ergonomiczny, parterowy projekt domu z antresolą to idealne rozwiązanie dla rodziny 2+2. Zaprojektowany na planie prostokąta, z reprezentacyjnym wejściem i dużym tarasem. Na zewnątrz elewacja została utrzymana w surowej grafitowo - białej kolorystyce, co nawiązuje do prostoty i oszczędności formy zgodnie z zasadą „ less is more”, czyli mniej znaczy więcej. Wewnętrzny układ domu jest przestrzenny i funkcjonalny. Po prawej stronie wyodrębniona została część dzienna - duża kuchnia ze spiżarnią, której towarzyszy jadalnia oraz przestronny pokój dzienny z wejściem na taras i ogród. Nad tą częścią domu znajduje się antresola, która pełni funkcję miejsca do pracy i rekreacji. W strefie nocnej, po lewej stronie, znajdują się trzy komfortowe sypialne, ogólnodostępna łazienką z wydzieloną pralnią, garderoba oraz pomieszczenie gospodarcze, które łączy część mieszkalną z częścią garażowa. W bryłę budynku został wkomponowany garaż dwustanowiskowy z miejscem na rowery oraz kotłownią. uA76v1 to projekt dla odważnych inwestorów, ceniących sobie prostotę i nowoczesność w połączeniu z najwyższa wygodą i funkcjonalnością w mieszkaniu. Projekt występuje również w nieco zmodyfikowanych wariantach pod nazwą uA76, uA76v2 oraz uA76v3.
Technologia:
Fundamenty: bloczek betonowy, lany beton
Ściany: gazobeton, silikaty, ceramika
Strop: żelbet
Dach: więźba dachowa, blacha
Ogrzewanie: gaz, kaloryfery
Wentylacja: grawitacyjna


















